Проект бани из бруса «Светлячок»

Проект бани из бруса «Светлячок»
От - 1 560 000 руб.
*комплектация «Под усадку»
Площадь
26 м2
Габариты
6x6 м
Санузлов
1   
Комнат
1   
Особенности:
с террасой
Материал:
профилированный брус, 190x140
Фундамент:
забивные ж/б сваи
Кровля:
Металлочерепица
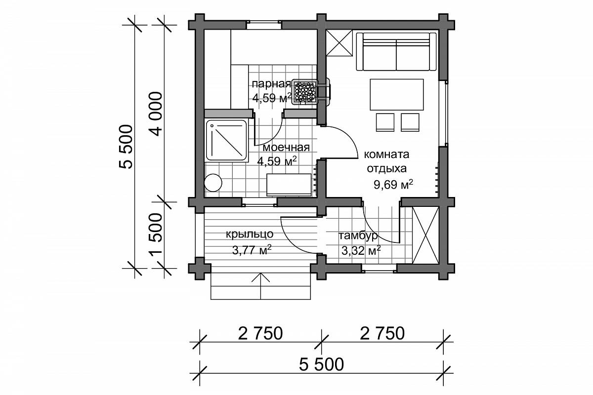
Проект бани из профилированного бруса, с габаритами 6,0х6,0 м. Внутреннее пространство бани разработано с учетом всех необходимых потребностей для комфортного отдыха и парения. Вход в баню осуществляется через крытое крыльцо и тепловой тамбур, где можно оставить уличную одежду. В просторной комнате отдыха поместить стол для чаепитий и диван для отдыха. Банная зона представлена двумя помещениями – душевой и парной.

План 1-го этажа

Хотите убедиться в качестве?
Приходите в гости!

Запишись на бесплатную экскурсию к нам на производство и по построенным объектам в форме на сайте.

Производство Клееного бруса
Производство Клееного бруса
Производство Клееного бруса
  Хочу построить сам Доверяю строительство "Конда"
под усадку под ключ
Домокомплект проекта ✔ ✔ ✔
Сборка домокомплекта ❌ ✔ ✔
Фундамент ❌ ✔ ✔
Отмостка и отделка фундамента ❌ ❌ ✔
Кровля ❌ ✔ ✔
Водосточная система ❌ ❌ ✔
Черновой пол и потолок ❌ ❌ ✔
Чистовой пол и потолок ❌ ❌ ✔
Устройство открытых террасс, крыльца ❌ ❌ ✔
Обработка наружных и внутренних стен сруба ❌ ❌ ✔
Наружние двери и окна ❌ ❌ ✔
Межкомнатные двери ❌ ❌ ✔
Электропроводка ✔
Отопление, Водопровод, Канализация ❌ ❌ ✔
Устройство септика, скважины ❌ ❌ ✔
Установка оборудования, сантехники, отопительных и электроприборов ❌ ❌ ✔
Доставка строительных материалов ✔ ✔ ✔
Вывоз строительного мусора ❌ ✔ ✔
Гарантия 5 лет на сборку! ❌ ✔ ✔
Вы можете бесплатно внести любые изменения в планировку и комплектацию данного проекта. Обратитесь к менеджеру для подробной консультации.
Калькулятор