Проект бани из бруса «Гагарка»

Проект бани из бруса «Гагарка»
От - 7 645 000 руб.
*комплектация «Под усадку»
Площадь
139 м2
Габариты
10x15 м
Санузлов
1   
Комнат
1   
Особенности:
с верандой
Материал:
клееный брус, 160x185
Фундамент:
забивные ж/б сваи
Кровля:
Металлочерепица

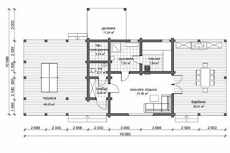
Проект бани выполнен из клееного бруса, особенностью проекта является наличие двух террас. Баня выполнена с двускатной кровлей и акцентной кукушкой над входом. С торцевой части бани запроектирован пристрой для хранения дров.

В планировочном решении заложено три основных объема – терраса для активного отдыха, объем бани и летняя кухня. Вход в баню организован через тепловой тамбур, есть санузел, и небольшое помещение котельной. В комнате отдыха можно разместить диванную зону и обеденный стол. Банная часть представлена душевой и парной. Топка банной печи выходит в комнату отдыха, образуя портал камина.

Из комнаты отдыха есть выход на летнюю кухню, здесь устроена печь-барбекю, обеденный стол, здесь можно проводить семейные застолья, праздники. Эта зона больше направлена на спокойный семейный отдых. Вторая терраса организована для шумных детских игр, здесь можно поставить бильярд, теннисный стол, заниматься йогой и другими видами спорта, при этом не отвлекаться на дождь и порывистый ветер.

План 1-го этажа

Хотите убедиться в качестве?
Приходите в гости!

Запишись на бесплатную экскурсию к нам на производство и по построенным объектам в форме на сайте.

Производство Клееного бруса
Производство Клееного бруса
Производство Клееного бруса
  Хочу построить сам Доверяю строительство "Конда"
под усадку под ключ
Домокомплект проекта ✔ ✔ ✔
Сборка домокомплекта ❌ ✔ ✔
Фундамент ❌ ✔ ✔
Отмостка и отделка фундамента ❌ ❌ ✔
Кровля ❌ ✔ ✔
Водосточная система ❌ ❌ ✔
Черновой пол и потолок ❌ ❌ ✔
Чистовой пол и потолок ❌ ❌ ✔
Устройство открытых террасс, крыльца ❌ ❌ ✔
Обработка наружных и внутренних стен сруба ❌ ❌ ✔
Наружние двери и окна ❌ ❌ ✔
Межкомнатные двери ❌ ❌ ✔
Электропроводка ✔
Отопление, Водопровод, Канализация ❌ ❌ ✔
Устройство септика, скважины ❌ ❌ ✔
Установка оборудования, сантехники, отопительных и электроприборов ❌ ❌ ✔
Доставка строительных материалов ✔ ✔ ✔
Вывоз строительного мусора ❌ ✔ ✔
Гарантия 5 лет на сборку! ❌ ✔ ✔
Вы можете бесплатно внести любые изменения в планировку и комплектацию данного проекта. Обратитесь к менеджеру для подробной консультации.
Калькулятор