Проект бани из бруса «Островное»

Проект бани из бруса «Островное»
От - 4 550 000 руб.
*комплектация «Под усадку»
Площадь
70 м2
Габариты
8x12 м
Санузлов
1   
Комнат
1   
Особенности:
с террасой
Материал:
клееный брус, 160x185
Фундамент:
забивные ж/б сваи
Кровля:
Металлочерепица

Проект бани с уличной купелью. Проект выполнен из клееного бруса, имеет все необходимые помещения для комфортного парения и отдыха.

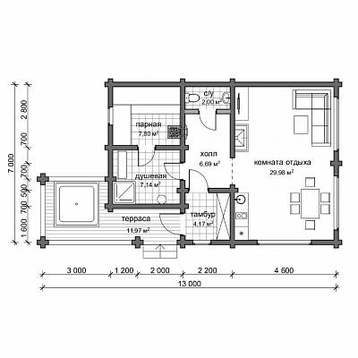
В состав помещений входят – тепловой тамбур, холл из которого можно попасть в санузел, банную зону и комнату отдыха. В комнате отдыха достаточно пространства для размещения кухонного гарнитура, обеденного стола, диванной группы. Здесь можно установить камин для дополнительного обогрева и для уюта, чтобы любоваться живым огнем. Банная зона представлена двумя помещениями – это душевая и парная. Здесь достаточно места для размещения душевой, обливного ведра, можно поставить небольшую купель, а в парной организованы г-образные пологи для одновременного парения двух человек. Топка банной печи выходит в холл, это удобно тем, что грязь, щепки от дров не разносятся по всей бане, и подкидывать дрова в печь можно, не тревожа отдыхающих людей.

Особенностью бани является организация уличной купели на террасе. Такое решение позволит пользоваться купелью в летний и в зимний период.

План 1-го этажа

Хотите убедиться в качестве?
Приходите в гости!

Запишись на бесплатную экскурсию к нам на производство и по построенным объектам в форме на сайте.

Производство Клееного бруса
Производство Клееного бруса
Производство Клееного бруса
  Хочу построить сам Доверяю строительство "Конда"
под усадку под ключ
Домокомплект проекта ✔ ✔ ✔
Сборка домокомплекта ❌ ✔ ✔
Фундамент ❌ ✔ ✔
Отмостка и отделка фундамента ❌ ❌ ✔
Кровля ❌ ✔ ✔
Водосточная система ❌ ❌ ✔
Черновой пол и потолок ❌ ❌ ✔
Чистовой пол и потолок ❌ ❌ ✔
Устройство открытых террасс, крыльца ❌ ❌ ✔
Обработка наружных и внутренних стен сруба ❌ ❌ ✔
Наружние двери и окна ❌ ❌ ✔
Межкомнатные двери ❌ ❌ ✔
Электропроводка ✔
Отопление, Водопровод, Канализация ❌ ❌ ✔
Устройство септика, скважины ❌ ❌ ✔
Установка оборудования, сантехники, отопительных и электроприборов ❌ ❌ ✔
Доставка строительных материалов ✔ ✔ ✔
Вывоз строительного мусора ❌ ✔ ✔
Гарантия 5 лет на сборку! ❌ ✔ ✔
Вы можете бесплатно внести любые изменения в планировку и комплектацию данного проекта. Обратитесь к менеджеру для подробной консультации.
Калькулятор