Проект бани из бревна «Мироново»

Проект бани из бревна «Мироново»
От - 2 530 000 руб.
*комплектация «Под усадку»
Площадь
46 м2
Габариты
6x11 м
Санузлов
1   
Комнат
1   
Материал:
оцилиндрованное бревно, 22 см
Фундамент:
забивные ж/б сваи
Кровля:
Металлочерепица

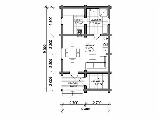
Проект бани из оцилиндрованного бревна имеет габариты 5,0х9,6 м, такие размеры выбраны исходя из оптимального раскроя бревен.

Баня выполнена с классическим внутренним расположением помещений – большая комната отдыха, душевая и парная. В комнате отдыха можно установить небольшой кухонный гарнитур, обеденный стол, диван. Моечная и парная достаточно просторные, в моечной предполагается установка душа, обливного ведра , по желанию можно организовать санузел. В парной запроектирован двухъярусный полог, топка банной печи происходит из комнаты отдыха. Также есть техническое помещение с отдельным входом, здесь размещается инженерное оборудование бани, также можно хранить садовый инвентарь. Площади бани можно использовать не только по прямому назначению, но и провести здесь время большой компанией и даже оставить гостей ночевать.

План 1-го этажа

Хотите убедиться в качестве?
Приходите в гости!

Запишись на бесплатную экскурсию к нам на производство и по построенным объектам в форме на сайте.

Производство Клееного бруса
Производство Клееного бруса
Производство Клееного бруса
  Хочу построить сам Доверяю строительство "Конда"
под усадку под ключ
Домокомплект проекта ✔ ✔ ✔
Сборка домокомплекта ❌ ✔ ✔
Фундамент ❌ ✔ ✔
Отмостка и отделка фундамента ❌ ❌ ✔
Кровля ❌ ✔ ✔
Водосточная система ❌ ❌ ✔
Черновой пол и потолок ❌ ❌ ✔
Чистовой пол и потолок ❌ ❌ ✔
Устройство открытых террасс, крыльца ❌ ❌ ✔
Обработка наружных и внутренних стен сруба ❌ ❌ ✔
Наружние двери и окна ❌ ❌ ✔
Межкомнатные двери ❌ ❌ ✔
Электропроводка ✔
Отопление, Водопровод, Канализация ❌ ❌ ✔
Устройство септика, скважины ❌ ❌ ✔
Установка оборудования, сантехники, отопительных и электроприборов ❌ ❌ ✔
Доставка строительных материалов ✔ ✔ ✔
Вывоз строительного мусора ❌ ✔ ✔
Гарантия 5 лет на сборку! ❌ ✔ ✔
Вы можете бесплатно внести любые изменения в планировку и комплектацию данного проекта. Обратитесь к менеджеру для подробной консультации.
Калькулятор