Проект бани из бревна «Реутинское»

Проект бани из бревна «Реутинское»
От - 2 035 000 руб.
*комплектация «Под усадку»
Площадь
37 м2
Габариты
6x7 м
Санузлов
1   
Комнат
1   
Особенности:
с террасой
Материал:
оцилиндрованное бревно, 22 см
Фундамент:
забивные ж/б сваи
Кровля:
Металлочерепица

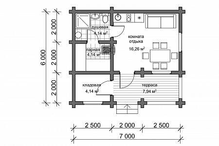
Проект деревянной бани, выполнен из оцилиндрованного бревна. Подойдет для размещения на садовых и дачных участках. Баню украшает терраса с перерубами и вертикальными стойками.

Банная часть представлена комнатой отдыха, душевой и парной. В комнате отдыха можно разместить небольшой кухонный уголок, поставить диван и стол. В душевой можно организовать выделенный санузел, поставить душ и обливное ведро. Сердце бани – парная, здесь запроектирован г-образный двухярусный полог, топка печи выходит в комнату отдыха, образуя там портал камина. Терраса может послужить дополнительным местом отдыха в летний период времени. С террасы можно попасть в кладовое помещение, его можно использовать как дровник или для хранения садового инвентаря.

План 1-го этажа

Хотите убедиться в качестве?
Приходите в гости!

Запишись на бесплатную экскурсию к нам на производство и по построенным объектам в форме на сайте.

Производство Клееного бруса
Производство Клееного бруса
Производство Клееного бруса
  Хочу построить сам Доверяю строительство "Конда"
под усадку под ключ
Домокомплект проекта ✔ ✔ ✔
Сборка домокомплекта ❌ ✔ ✔
Фундамент ❌ ✔ ✔
Отмостка и отделка фундамента ❌ ❌ ✔
Кровля ❌ ✔ ✔
Водосточная система ❌ ❌ ✔
Черновой пол и потолок ❌ ❌ ✔
Чистовой пол и потолок ❌ ❌ ✔
Устройство открытых террасс, крыльца ❌ ❌ ✔
Обработка наружных и внутренних стен сруба ❌ ❌ ✔
Наружние двери и окна ❌ ❌ ✔
Межкомнатные двери ❌ ❌ ✔
Электропроводка ✔
Отопление, Водопровод, Канализация ❌ ❌ ✔
Устройство септика, скважины ❌ ❌ ✔
Установка оборудования, сантехники, отопительных и электроприборов ❌ ❌ ✔
Доставка строительных материалов ✔ ✔ ✔
Вывоз строительного мусора ❌ ✔ ✔
Гарантия 5 лет на сборку! ❌ ✔ ✔
Вы можете бесплатно внести любые изменения в планировку и комплектацию данного проекта. Обратитесь к менеджеру для подробной консультации.
Калькулятор