Проект бани из бревна «Видонова»

Проект бани из бревна «Видонова»
От - 1 265 000 руб.
*комплектация «Под усадку»
Площадь
23 м2
Габариты
6x6 м
Санузлов
1   
Комнат
1   
Материал:
оцилиндрованное бревно, 22 см
Фундамент:
забивные ж/б сваи
Кровля:
Металлочерепица

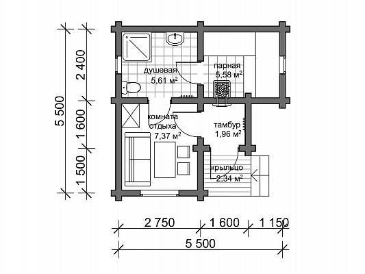
Проект бани выполнен из оцилиндрованного бревна, угловая планировка позволит удобно расположить строение даже на небольшом участке.

Состав помещений классический для такого типа бань: вход в баню организован с крыльца через тепловой тамбур. В комнате отдыха можно разместить небольшой кухонный уголок для разогрева и приготовления пищи, обеденный стол и диван для отдыха после парения. Банная зона представлена двумя помещениями – душевая и парная. В душевой организован санузел, душевая лейка и обливное ведро. В парной располагается угловой двухъярусный полог. Топка печи выходит в тамбур, что позволяет подкидывать дрова в печь не беспокоя парящихся и отдыхающих, а также не разносить грязь и опилки от дров по всей бане.

План 1-го этажа

Хотите убедиться в качестве?
Приходите в гости!

Запишись на бесплатную экскурсию к нам на производство и по построенным объектам в форме на сайте.

Производство Клееного бруса
Производство Клееного бруса
Производство Клееного бруса
  Хочу построить сам Доверяю строительство "Конда"
под усадку под ключ
Домокомплект проекта ✔ ✔ ✔
Сборка домокомплекта ❌ ✔ ✔
Фундамент ❌ ✔ ✔
Отмостка и отделка фундамента ❌ ❌ ✔
Кровля ❌ ✔ ✔
Водосточная система ❌ ❌ ✔
Черновой пол и потолок ❌ ❌ ✔
Чистовой пол и потолок ❌ ❌ ✔
Устройство открытых террасс, крыльца ❌ ❌ ✔
Обработка наружных и внутренних стен сруба ❌ ❌ ✔
Наружние двери и окна ❌ ❌ ✔
Межкомнатные двери ❌ ❌ ✔
Электропроводка ✔
Отопление, Водопровод, Канализация ❌ ❌ ✔
Устройство септика, скважины ❌ ❌ ✔
Установка оборудования, сантехники, отопительных и электроприборов ❌ ❌ ✔
Доставка строительных материалов ✔ ✔ ✔
Вывоз строительного мусора ❌ ✔ ✔
Гарантия 5 лет на сборку! ❌ ✔ ✔
Вы можете бесплатно внести любые изменения в планировку и комплектацию данного проекта. Обратитесь к менеджеру для подробной консультации.
Калькулятор