Проект бани из бруса "Родник"

Проект бани из бруса "Родник"
От - 3 120 000 руб.
*комплектация «Под усадку»
Площадь
48 м2
Габариты
4x10 м
Санузлов
1   
Комнат
1   
Особенности:
с террасой
Материал:
клееный брус, 160x185
Фундамент:
забивные ж/б сваи
Кровля:
Металлочерепица
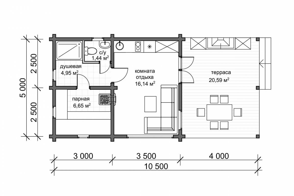
Баня «Родник» - отличное сочетание компактности и удобства. Все необходимые зоны размещены самым комфортным образом. Замечательная комната отдыха – здесь поместится диван и пара кресел, а также кухонный гарнитур, с холодильником, раковиной, варочной плитой и рабочей зоной. Очень удобно для неспешных банных процедур. Из комнаты отдыха можно выйти на просторную террасу, провести время на свежем воздухе. Наружные стены – премиальный клееный брус 120*185 мм.

Преимущества: Большая терраса с возможностью размещения барбекю-зоны Два окна в парной Компактный санузел

План 1-го этажа

Хотите убедиться в качестве?
Приходите в гости!

Запишись на бесплатную экскурсию к нам на производство и по построенным объектам в форме на сайте.

Производство Клееного бруса
Производство Клееного бруса
Производство Клееного бруса
  Хочу построить сам Доверяю строительство "Конда"
под усадку под ключ
Домокомплект проекта ✔ ✔ ✔
Сборка домокомплекта ❌ ✔ ✔
Фундамент ❌ ✔ ✔
Отмостка и отделка фундамента ❌ ❌ ✔
Кровля ❌ ✔ ✔
Водосточная система ❌ ❌ ✔
Черновой пол и потолок ❌ ❌ ✔
Чистовой пол и потолок ❌ ❌ ✔
Устройство открытых террасс, крыльца ❌ ❌ ✔
Обработка наружных и внутренних стен сруба ❌ ❌ ✔
Наружние двери и окна ❌ ❌ ✔
Межкомнатные двери ❌ ❌ ✔
Электропроводка ✔
Отопление, Водопровод, Канализация ❌ ❌ ✔
Устройство септика, скважины ❌ ❌ ✔
Установка оборудования, сантехники, отопительных и электроприборов ❌ ❌ ✔
Доставка строительных материалов ✔ ✔ ✔
Вывоз строительного мусора ❌ ✔ ✔
Гарантия 5 лет на сборку! ❌ ✔ ✔
Вы можете бесплатно внести любые изменения в планировку и комплектацию данного проекта. Обратитесь к менеджеру для подробной консультации.
Калькулятор