Проект бани из бруса «Кедровка»

Проект бани из бруса «Кедровка»
От - 2 015 000 руб.
*комплектация «Под усадку»
Площадь
31 м2
Габариты
6x7 м
Санузлов
1   
Комнат
1   
Особенности:
с террасой
Материал:
клееный брус, 160x185
Фундамент:
забивные ж/б сваи
Кровля:
Металлочерепица

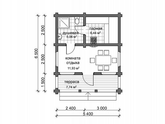
В проекте деревянной бани из клееного бруса за основу взято классическое планировочное решение. Габариты бани 5,4х6,5 м, при таких размерах брус используется с минимальным количеством отходов. Акцентным решением стало разделение кровли на две части – над банной зоной кровля выше, а над террасой – уровень крыши опущен и покрытие кровли сделано из прозрачного поликарбоната, также терраса украшена выступающими балками, которые несут в первую очередь декоративную функцию, при этом на них можно повесить кресло, гамак, сделать подвесные вазоны с цветами.

Планировочное решение классическое – при входе в баню попадаем в комнату отдыха, здесь можно разместить шкаф для хранения вещей, стол с лавками для чаепития, небольшой диванчик или топчан, чтобы полежать, расслабится после парения. Банная часть начинается с душевой, где при желании можно разместить санузел. Само помещение парной просторное, здесь размещены угловые широкие полки, приспособленные для одновременного парения двух человек.

План 1-го этажа

Хотите убедиться в качестве?
Приходите в гости!

Запишись на бесплатную экскурсию к нам на производство и по построенным объектам в форме на сайте.

Производство Клееного бруса
Производство Клееного бруса
Производство Клееного бруса
  Хочу построить сам Доверяю строительство "Конда"
под усадку под ключ
Домокомплект проекта ✔ ✔ ✔
Сборка домокомплекта ❌ ✔ ✔
Фундамент ❌ ✔ ✔
Отмостка и отделка фундамента ❌ ❌ ✔
Кровля ❌ ✔ ✔
Водосточная система ❌ ❌ ✔
Черновой пол и потолок ❌ ❌ ✔
Чистовой пол и потолок ❌ ❌ ✔
Устройство открытых террасс, крыльца ❌ ❌ ✔
Обработка наружных и внутренних стен сруба ❌ ❌ ✔
Наружние двери и окна ❌ ❌ ✔
Межкомнатные двери ❌ ❌ ✔
Электропроводка ✔
Отопление, Водопровод, Канализация ❌ ❌ ✔
Устройство септика, скважины ❌ ❌ ✔
Установка оборудования, сантехники, отопительных и электроприборов ❌ ❌ ✔
Доставка строительных материалов ✔ ✔ ✔
Вывоз строительного мусора ❌ ✔ ✔
Гарантия 5 лет на сборку! ❌ ✔ ✔
Вы можете бесплатно внести любые изменения в планировку и комплектацию данного проекта. Обратитесь к менеджеру для подробной консультации.
Калькулятор