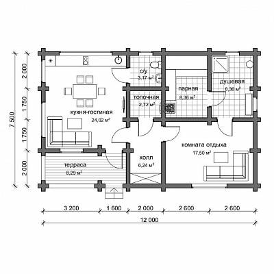
Банный комплекс выполнен из оцилиндрованного бревна, имеет общие размеры 7,5х12,0 м. У бани выполнен расширенный состав помещений для комфортного парения и отдыха. Кровля над баней выполнена в несколько ярусов, что придает ей необычный и запоминающийся облик.
Вход в баню организован через теплый распределительный тамбур, где можно снять верхнюю одежду и обувь. Из тамбура можно попасть в банную часть, топочную и кухню-гостиную. Гостиная имеет площадь 24 м.кв, здесь устроен кухонный гарнитур, обеденный стол, диванная зона с просмотром тв, площади достаточно, чтобы здесь оставить гостей ночевать. В бане устроен отдельный санузел и топочное помещение, что удобно, не разносится грязь и опилки от дров. Банная часть представлена комнатой отдыха, моечной и парилкой. В парной устроен угловой двухъярусный полог для одновременного парения в четыре руки, в моечной установлены душ, обливное ведро, можно поставить небольшую купель или кедровую бочку.
Запишись на бесплатную экскурсию к нам на производство и по построенным объектам в форме на сайте.
| Хочу построить сам | Доверяю строительство "Конда" | ||
|---|---|---|---|
| под усадку | под ключ | ||
|
Домокомплект проекта
Тип материала на выбор:
|
|
|
|
Сборка домокомплекта
|
|
|
|
|
Фундамент
Фундамент, согласно проекта КЖ:
|
|
|
|
Отмостка и отделка фундамента
|
|
|
|
|
Кровля
Кровля на выбор: профлист, металлочерепица, гибкая черепица.
|
|
|
|
Водосточная система
|
|
|
|
Черновой пол и потолок
|
|
|
|
| Чистовой пол и потолок |
|
|
|
Устройство открытых террасс, крыльца
|
|
|
|
Обработка наружных и внутренних стен сруба
|
|
|
|
Наружние двери и окна
|
|
|
|
Межкомнатные двери
|
|
|
|
|
Электропроводка
До вводного щита.
|
|
|
|
Отопление, Водопровод, Канализация
|
|
|
|
| Устройство септика, скважины |
|
|
|
| Установка оборудования, сантехники, отопительных и электроприборов |
|
|
|
| Доставка строительных материалов |
|
|
|
| Вывоз строительного мусора |
|
|
|
| Гарантия 5 лет на сборку! |
|
|
|