Проект дома из бруса «Дуброво»

Проект дома из бруса «Дуброво»
От - 7 661 000 руб.
*комплектация «Под усадку»
Площадь
163 м2
Габариты
9x9 м
Санузлов
2   
Комнат
3   
Особенности:
с террасой
Материал:
клееный брус, 160x185
Фундамент:
забивные ж/б сваи
Кровля:
Металлочерепица

Оригинальный проект деревянного дома для постоянного проживания. Архитектура дома действительно необычная, за счет разноуровневых скатов кровли, фасады смотрятся свежо и современно.

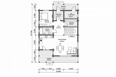
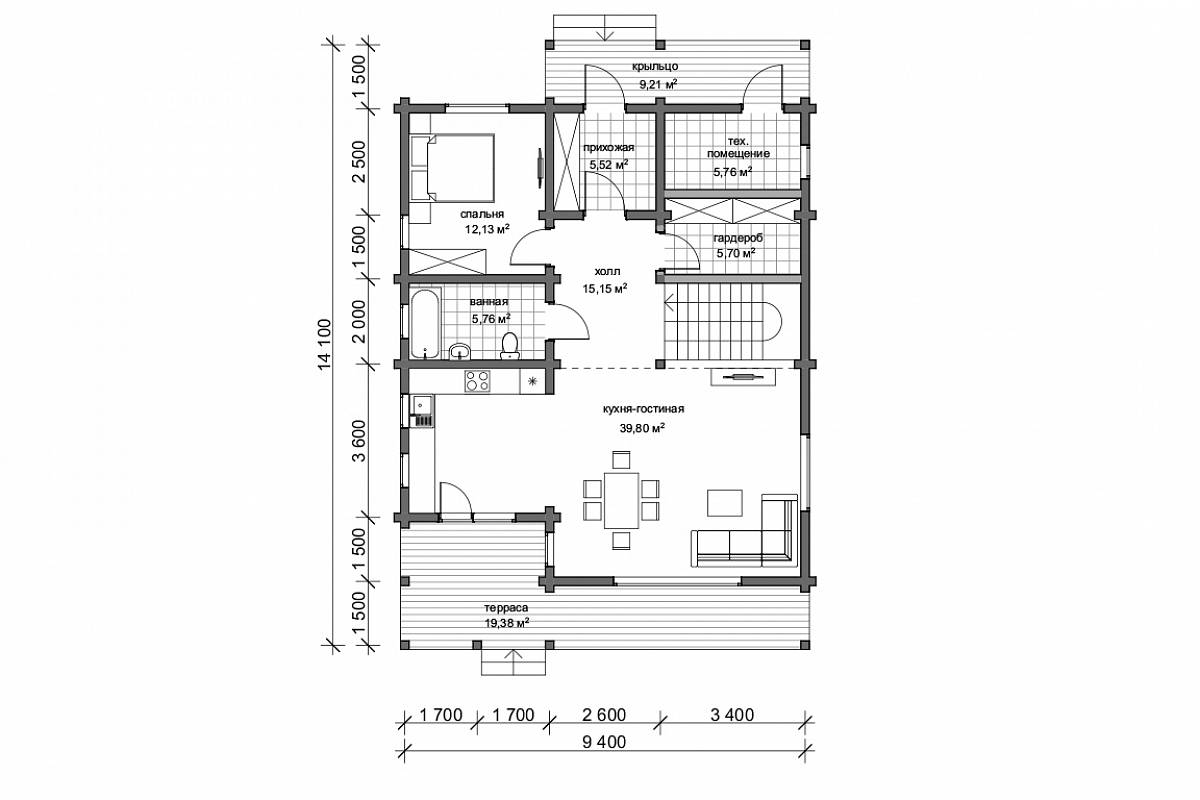
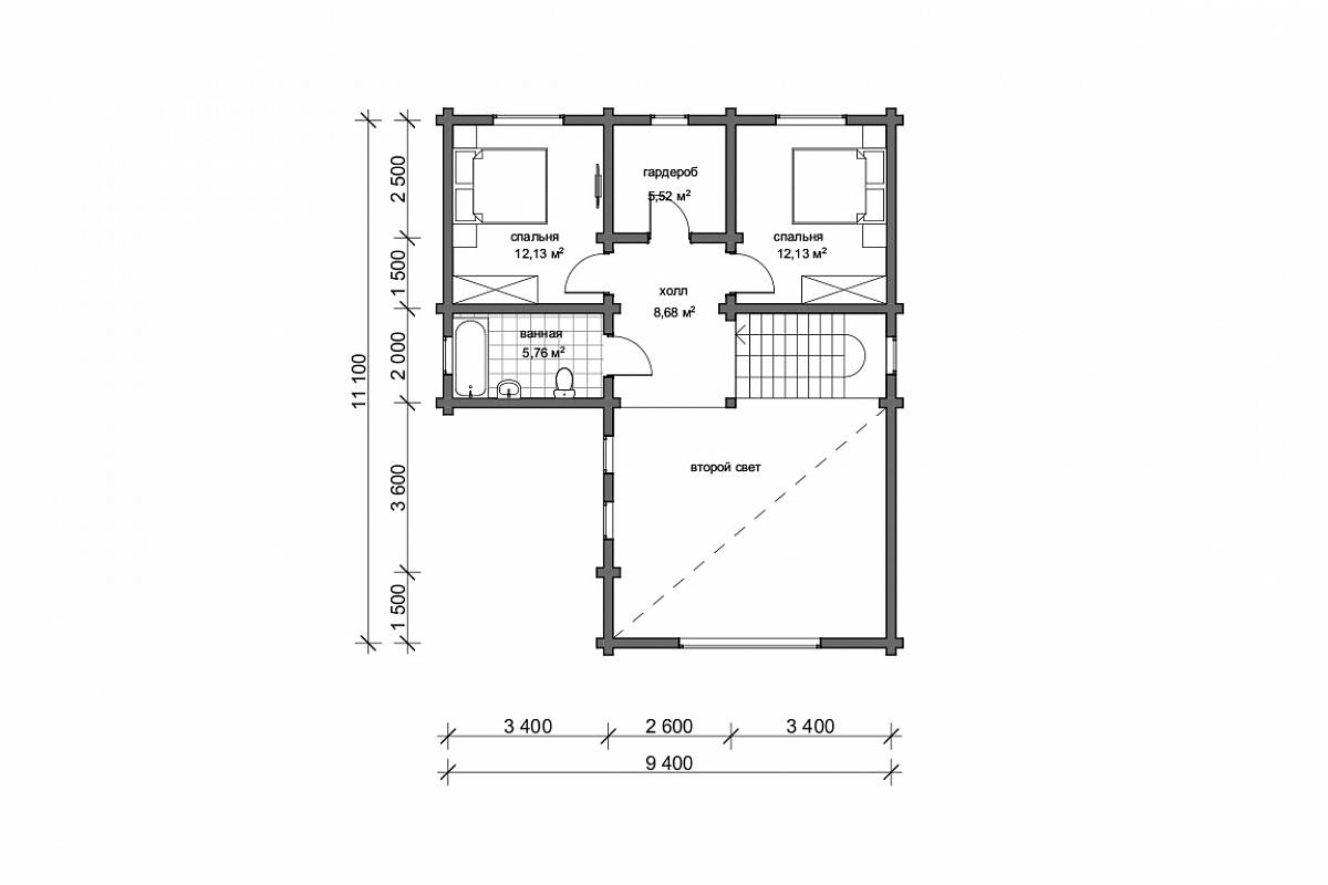
Планировочное решение тоже в современных тенденциях. Максимум площади занимает просторная гостиная, все остальные пространства – это душевая, прихожая, техническое помещение, спальня и кухня – умеренной площади, при этом выполняют свои функции. Над гостиной организован второй свет, это визуально увеличивает пространство, добавляет естественного света и солнечных лучей. Второй этаж мансардный, здесь размещены две спальни и санузел.

Перед домом организована терраса с выходом из кухни, это удобно в летнее время, можно проводить время с семьей на свежем воздухе.

План 1-го этажа

План 2-го этажа

Хотите убедиться в качестве?
Приходите в гости!

Запишись на бесплатную экскурсию к нам на производство и по построенным объектам в форме на сайте.

Производство Клееного бруса
Производство Клееного бруса
Производство Клееного бруса
  Хочу построить сам Доверяю строительство "Конда"
под усадку под ключ
Домокомплект проекта ✔ ✔ ✔
Сборка домокомплекта ❌ ✔ ✔
Фундамент ❌ ✔ ✔
Отмостка и отделка фундамента ❌ ❌ ✔
Кровля ❌ ✔ ✔
Водосточная система ❌ ❌ ✔
Черновой пол и потолок ❌ ❌ ✔
Чистовой пол и потолок ❌ ❌ ✔
Устройство открытых террасс, крыльца ❌ ❌ ✔
Обработка наружных и внутренних стен сруба ❌ ❌ ✔
Наружние двери и окна ❌ ❌ ✔
Межкомнатные двери ❌ ❌ ✔
Электропроводка ✔
Отопление, Водопровод, Канализация ❌ ❌ ✔
Устройство септика, скважины ❌ ❌ ✔
Установка оборудования, сантехники, отопительных и электроприборов ❌ ❌ ✔
Доставка строительных материалов ✔ ✔ ✔
Вывоз строительного мусора ❌ ✔ ✔
Гарантия 5 лет на сборку! ❌ ✔ ✔
Вы можете бесплатно внести любые изменения в планировку и комплектацию данного проекта. Обратитесь к менеджеру для подробной консультации.
Калькулятор