Проект дома-бани на 11 кв.м. со вторым светом и летней кухней. Проект выполнен из оцилиндрованного бревна, подходит для постоянного проживания, уместен для размещения на участке от 8 соток.
Такой проект подразумевает два варианта использования. Первый вариант - это дом, в котором можно проживать постоянно и в нем есть баня/сауна как приятный и удобный бонус. Либо второй вариант – это баня с элементами гостевого дома, где гости будут чувствовать себя комфортно, смогут переночевать, при этом не мешать хозяевам в основном доме.
Вход в дом осуществляется с большой деревянной террасы, организован санузел, есть отдельно моечная, где площадь позволит разместить душевой поддон, обливное ведро, деревянную купель. Сердце бани – парная. Здесь можно устроить дровяную печь с выходом топки в комнату отдыха, или установить электрическую печь для сауны.
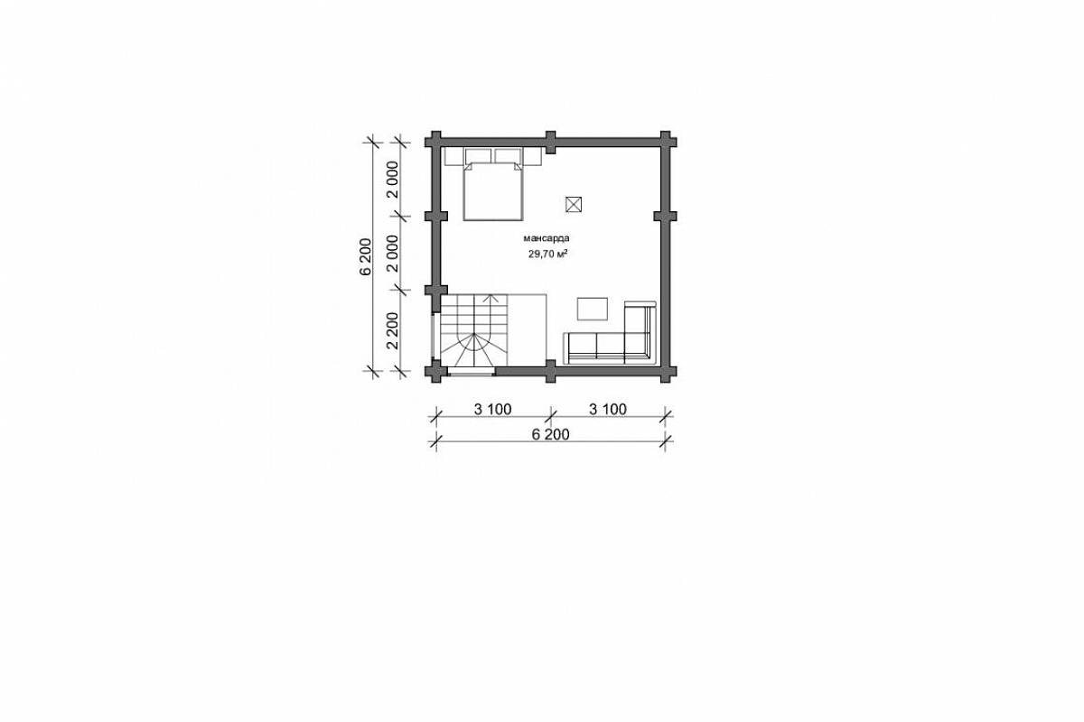
В просторной комнате отдыха можно разместить кухонный гарнитур, мягкую зону, обеденный стол. Здесь же установлена винтовая лестница, которая без сомнения станет украшением интерьера и позволит грамотно разделить пространство на функциональные зоны. На втором этаже площадь позволяет организовать две спальни.
Запишись на бесплатную экскурсию к нам на производство и по построенным объектам в форме на сайте.
| Хочу построить сам | Доверяю строительство "Конда" | ||
|---|---|---|---|
| под усадку | под ключ | ||
|
Домокомплект проекта
Тип материала на выбор:
|
|
|
|
Сборка домокомплекта
|
|
|
|
|
Фундамент
Фундамент, согласно проекта КЖ:
|
|
|
|
Отмостка и отделка фундамента
|
|
|
|
|
Кровля
Кровля на выбор: профлист, металлочерепица, гибкая черепица.
|
|
|
|
Водосточная система
|
|
|
|
Черновой пол и потолок
|
|
|
|
| Чистовой пол и потолок |
|
|
|
Устройство открытых террасс, крыльца
|
|
|
|
Обработка наружных и внутренних стен сруба
|
|
|
|
Наружние двери и окна
|
|
|
|
Межкомнатные двери
|
|
|
|
|
Электропроводка
До вводного щита.
|
|
|
|
Отопление, Водопровод, Канализация
|
|
|
|
| Устройство септика, скважины |
|
|
|
| Установка оборудования, сантехники, отопительных и электроприборов |
|
|
|
| Доставка строительных материалов |
|
|
|
| Вывоз строительного мусора |
|
|
|
| Гарантия 5 лет на сборку! |
|
|
|