Проект дома из бревна «Ляпуново»

Проект дома из бревна «Ляпуново»
От - 6 040 000 руб.
*комплектация «Под усадку»
Площадь
151 м2
Габариты
10x12 м
Санузлов
2   
Комнат
3   
Особенности:
с террасой
Материал:
оцилиндрованное бревно, 24 см
Фундамент:
винтовой
Кровля:
Металлочерепица

Проект дома из оцилиндрованного бревна с общей площадью 151 м.кв. Имеет все необходимые помещения для постоянного проживания. Дом имеет габаритные размеры 10х12 м, по архитектуре выполнен из двух объемов. Второй этаж мансардный.

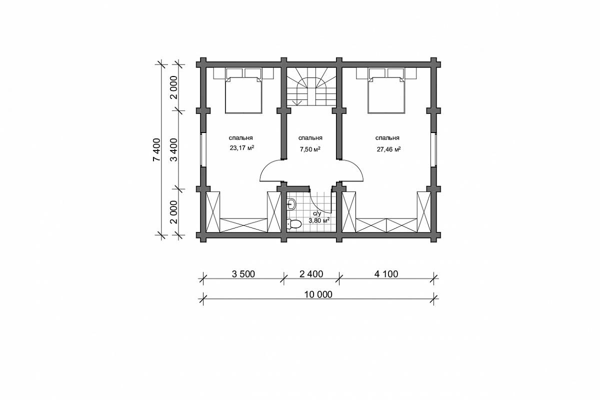
Вход в дом организован с компактной террасы, тепловой тамбур защищает от проникновения холодного воздуха в основные помещения дома. Здесь же организовано техническое помещение для размещения электрического котла. Из холла попадаем в совмещенный санузел. Также в холле размещена лестница на второй этаж. Кухня визуально разделена от гостиной арочными проемами, в гостиной выполнены широкие оконные проемы, что прибавляет помещению естественного света. На втором этаже разместилась жилая зона с санузлом и двумя спальнями.

План 1-го этажа

План 2-го этажа

Хотите убедиться в качестве?
Приходите в гости!

Запишись на бесплатную экскурсию к нам на производство и по построенным объектам в форме на сайте.

Производство Клееного бруса
Производство Клееного бруса
Производство Клееного бруса
  Хочу построить сам Доверяю строительство "Конда"
под усадку под ключ
Домокомплект проекта ✔ ✔ ✔
Сборка домокомплекта ❌ ✔ ✔
Фундамент ❌ ✔ ✔
Отмостка и отделка фундамента ❌ ❌ ✔
Кровля ❌ ✔ ✔
Водосточная система ❌ ❌ ✔
Черновой пол и потолок ❌ ❌ ✔
Чистовой пол и потолок ❌ ❌ ✔
Устройство открытых террасс, крыльца ❌ ❌ ✔
Обработка наружных и внутренних стен сруба ❌ ❌ ✔
Наружние двери и окна ❌ ❌ ✔
Межкомнатные двери ❌ ❌ ✔
Электропроводка ✔
Отопление, Водопровод, Канализация ❌ ❌ ✔
Устройство септика, скважины ❌ ❌ ✔
Установка оборудования, сантехники, отопительных и электроприборов ❌ ❌ ✔
Доставка строительных материалов ✔ ✔ ✔
Вывоз строительного мусора ❌ ✔ ✔
Гарантия 5 лет на сборку! ❌ ✔ ✔
Вы можете бесплатно внести любые изменения в планировку и комплектацию данного проекта. Обратитесь к менеджеру для подробной консультации.
Калькулятор