Проект дома из бревна «Слобода»

Проект дома из бревна «Слобода»
От - 10 000 000 руб.
*комплектация «Под усадку»
Площадь
250 м2
Габариты
11x15 м
Санузлов
2   
Комнат
4   
Особенности:
с балконом
Материал:
оцилиндрованное бревно, 22 см
Фундамент:
забивные ж/б сваи
Кровля:
Металлочерепица

Проект деревянного дома, спроектирован для постоянного проживания семьи из 4-5 человек. Дом имеет классический вид с мансардным вторым этажом и двускатной кровлей с кукушками по боковым фасадам.

Планировочное решение лаконичное, при этом грамотно выделены функциональные зоны. Вход в дом организован с крыльца, через тепловой тамбур. Холл является распределительным помещением, из него попадаем в гостевую спальню, санузел, по лестнице на второй этаж и в гостиную. Общее пространство кухни-гостиной самое большое, здесь поместятся кухонный гарнитур, обеденный стол, мягкая диванная зона. Из кухни сделан выход на летнюю террасу.

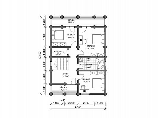
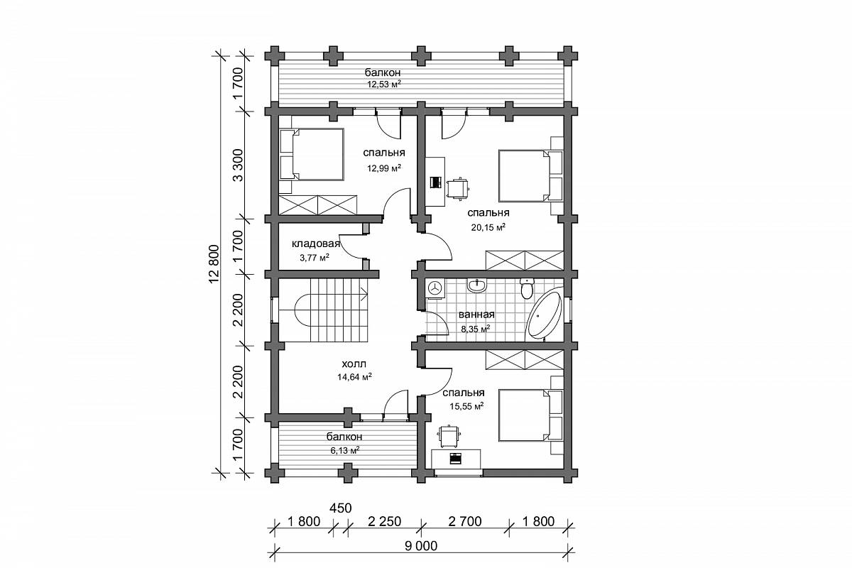
На втором этаже запроектированы три просторных спальни, санузел, кладовая, есть выход на крытый балкон. Общее пространство холла станет дополнительным местом для отдыха всей семьи.

План 1-го этажа

План 2-го этажа

Хотите убедиться в качестве?
Приходите в гости!

Запишись на бесплатную экскурсию к нам на производство и по построенным объектам в форме на сайте.

Производство Клееного бруса
Производство Клееного бруса
Производство Клееного бруса
  Хочу построить сам Доверяю строительство "Конда"
под усадку под ключ
Домокомплект проекта ✔ ✔ ✔
Сборка домокомплекта ❌ ✔ ✔
Фундамент ❌ ✔ ✔
Отмостка и отделка фундамента ❌ ❌ ✔
Кровля ❌ ✔ ✔
Водосточная система ❌ ❌ ✔
Черновой пол и потолок ❌ ❌ ✔
Чистовой пол и потолок ❌ ❌ ✔
Устройство открытых террасс, крыльца ❌ ❌ ✔
Обработка наружных и внутренних стен сруба ❌ ❌ ✔
Наружние двери и окна ❌ ❌ ✔
Межкомнатные двери ❌ ❌ ✔
Электропроводка ✔
Отопление, Водопровод, Канализация ❌ ❌ ✔
Устройство септика, скважины ❌ ❌ ✔
Установка оборудования, сантехники, отопительных и электроприборов ❌ ❌ ✔
Доставка строительных материалов ✔ ✔ ✔
Вывоз строительного мусора ❌ ✔ ✔
Гарантия 5 лет на сборку! ❌ ✔ ✔
Вы можете бесплатно внести любые изменения в планировку и комплектацию данного проекта. Обратитесь к менеджеру для подробной консультации.
Калькулятор