Проект дома из бруса «Нагорный»

Проект дома из бруса «Нагорный»
От - 5 265 000 руб.
*комплектация «Под усадку»
Площадь
117 м2
Габариты
10x15 м
Санузлов
2   
Комнат
3   
Особенности:
с террасой
Материал:
профилированный брус, 190x140
Фундамент:
забивные ж/б сваи
Кровля:
Металлочерепица

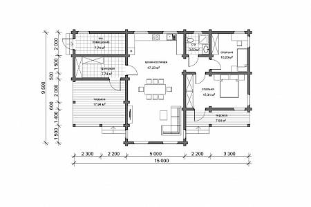
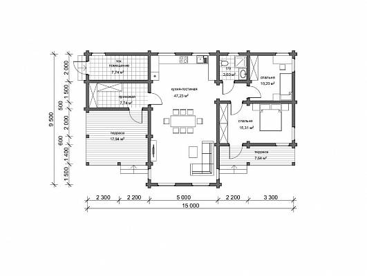
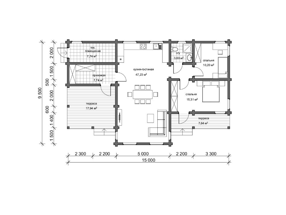
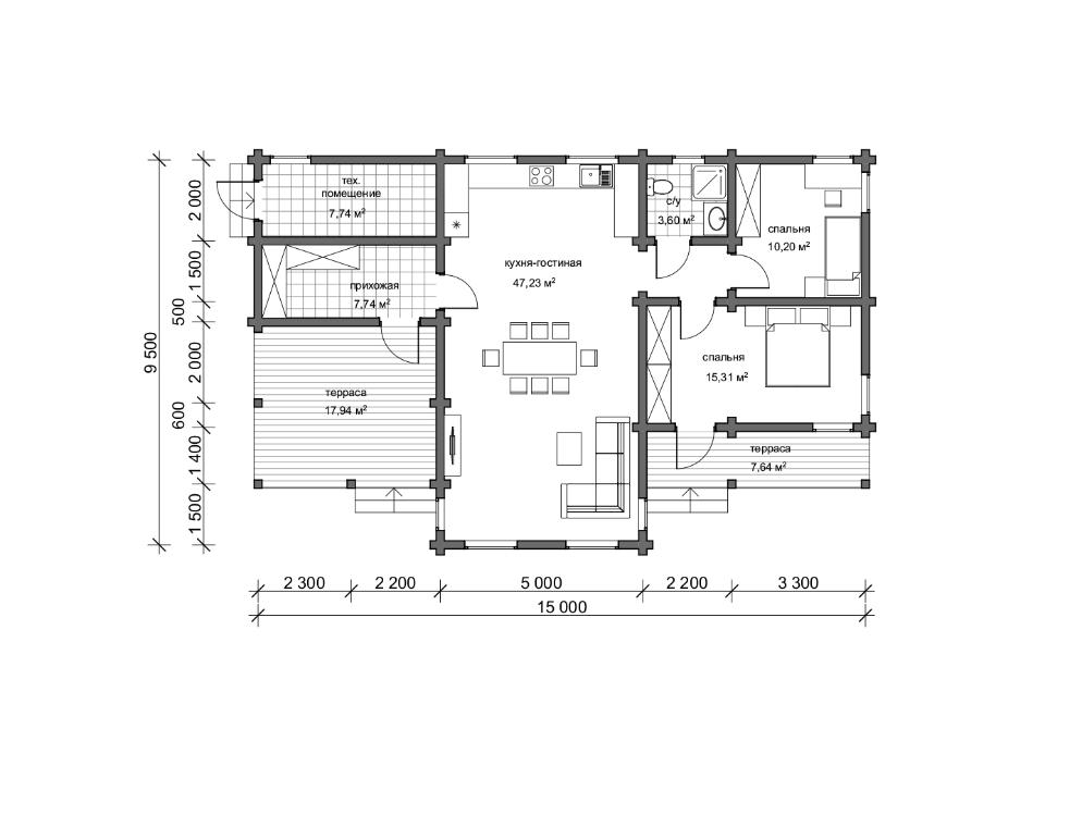
Проект одноэтажного дома выполнен из профилированного бруса, подходит как для сезонного, так и для постоянного проживания. Имеет габариты 9,5х15,0 м, разместится на участке от 8 соток. Дом на участке лучше всего располагать таким образом, чтобы окна гостиной смотрели на южную сторону, так в дом будет попадать максимум естественного света.

В доме есть все необходимые помещения для комфортного проживания. Оборудовано техническое помещение, по нормативу подходящее для размещения газового котла. Вход в дом организован с террасы, на которой в летнее время можно разместить садовую мебель, качели, обеденный стол. В доме две спальных комнаты, одна из которых имеет свой санузел. Также в доме есть гостевой санузел, кладовая и гардеробная. Остальное пространство занимает объединенное помещение кухни-гостиной. Здесь хватит места для размещения кухонного гарнитура, обеденной зоны, мягкой зоны диванов и просмотра тв.

План 1-го этажа

Хотите убедиться в качестве?
Приходите в гости!

Запишись на бесплатную экскурсию к нам на производство и по построенным объектам в форме на сайте.

Производство Клееного бруса
Производство Клееного бруса
Производство Клееного бруса
  Хочу построить сам Доверяю строительство "Конда"
под усадку под ключ
Домокомплект проекта ✔ ✔ ✔
Сборка домокомплекта ❌ ✔ ✔
Фундамент ❌ ✔ ✔
Отмостка и отделка фундамента ❌ ❌ ✔
Кровля ❌ ✔ ✔
Водосточная система ❌ ❌ ✔
Черновой пол и потолок ❌ ❌ ✔
Чистовой пол и потолок ❌ ❌ ✔
Устройство открытых террасс, крыльца ❌ ❌ ✔
Обработка наружных и внутренних стен сруба ❌ ❌ ✔
Наружние двери и окна ❌ ❌ ✔
Межкомнатные двери ❌ ❌ ✔
Электропроводка ✔
Отопление, Водопровод, Канализация ❌ ❌ ✔
Устройство септика, скважины ❌ ❌ ✔
Установка оборудования, сантехники, отопительных и электроприборов ❌ ❌ ✔
Доставка строительных материалов ✔ ✔ ✔
Вывоз строительного мусора ❌ ✔ ✔
Гарантия 5 лет на сборку! ❌ ✔ ✔
Вы можете бесплатно внести любые изменения в планировку и комплектацию данного проекта. Обратитесь к менеджеру для подробной консультации.
Калькулятор