Проект дома-бани из бруса «Черноусово»

Проект дома-бани из бруса «Черноусово»
От - 7 250 000 руб.
*комплектация «Под усадку»
Площадь
145 м2
Габариты
10x12 м
Санузлов
2   
Комнат
5   
Особенности:
с террасой
Материал:
профилированный брус, 160x185
Фундамент:
забивные ж/б сваи
Кровля:
Металлочерепица

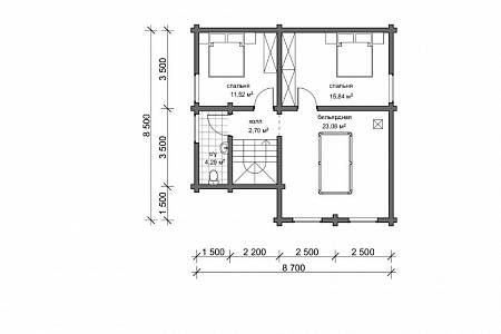
Дом подойдет для круглогодичного проживания семьи из 5-6 человек. Проект интересен тем, что сочетает в себе жилые функции и полноценную баню. Вход в дом - через тамбур, в холле размещена лестница. На первом этаже разместились помещения для приема гостей и банных процедур. Есть жилая комната и санузел. Комната отдыха выполняет двойную функцию – здесь можно установить кухонный гарнитур, обеденный стол и диванную группу - и получится гостиная, при этом здесь же можно отдыхать после посещения парной. Банная часть представлена предбанником-раздевалкой, душевой и парной. Парную можно организовать как с электрической печью, так и с печью на дровах. Второй этаж запроектирован как жилая зона, здесь размещаются две спальни, санузел, а также бильярдная. Снаружи дом украшает терраса, которая также становится дополнительным местом для отдыха в летнее время.



Преимущества: Банная зона с отдельной раздевалкой Три спальни Бильярдная Два санузла

План 1-го этажа

План 2-го этажа

Хотите убедиться в качестве?
Приходите в гости!

Запишись на бесплатную экскурсию к нам на производство и по построенным объектам в форме на сайте.

Производство Клееного бруса
Производство Клееного бруса
Производство Клееного бруса
  Хочу построить сам Доверяю строительство "Конда"
под усадку под ключ
Домокомплект проекта ✔ ✔ ✔
Сборка домокомплекта ❌ ✔ ✔
Фундамент ❌ ✔ ✔
Отмостка и отделка фундамента ❌ ❌ ✔
Кровля ❌ ✔ ✔
Водосточная система ❌ ❌ ✔
Черновой пол и потолок ❌ ❌ ✔
Чистовой пол и потолок ❌ ❌ ✔
Устройство открытых террасс, крыльца ❌ ❌ ✔
Обработка наружных и внутренних стен сруба ❌ ❌ ✔
Наружние двери и окна ❌ ❌ ✔
Межкомнатные двери ❌ ❌ ✔
Электропроводка ✔
Отопление, Водопровод, Канализация ❌ ❌ ✔
Устройство септика, скважины ❌ ❌ ✔
Установка оборудования, сантехники, отопительных и электроприборов ❌ ❌ ✔
Доставка строительных материалов ✔ ✔ ✔
Вывоз строительного мусора ❌ ✔ ✔
Гарантия 5 лет на сборку! ❌ ✔ ✔
Вы можете бесплатно внести любые изменения в планировку и комплектацию данного проекта. Обратитесь к менеджеру для подробной консультации.
Калькулятор