Проект дома из бревна «Ачиры»

Проект дома из бревна «Ачиры»
От - 4 520 000 руб.
*комплектация «Под усадку»
Площадь
113 м2
Габариты
9x11 м
Санузлов
2   
Комнат
3   
Особенности:
с террасой / с эркером
Материал:
оцилиндрованное бревно, 22 см
Фундамент:
забивные ж/б сваи
Кровля:
Металлочерепица

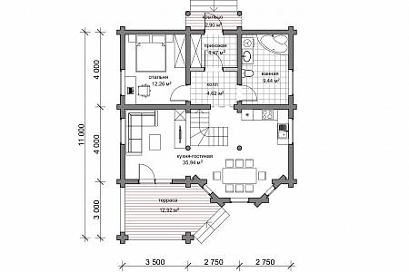
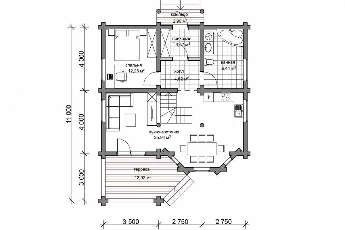
Проект дачного дома из оцилиндрованного бревна, при диаметре бревна 22 см пригоден для постоянного проживания. Фасады дома лаконичные, при этом изящества проекту добавляет выступающий эркер и терраса.

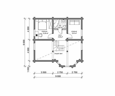
На первом этаже размещается прихожая, санузел, комната, совмещенная кухня-гостиная. Санузел здесь достаточной площади для размещения всего инженерного оборудования, если на участке нет подключения газоснабжения и есть перебои с электричеством, то в этом случае устанавливается твердотопливный котел. Над помещением гостиной оформлен второй свет. На втором этаже дополнительный санузел и три спальни.

План 1-го этажа

План 2-го этажа

Хотите убедиться в качестве?
Приходите в гости!

Запишись на бесплатную экскурсию к нам на производство и по построенным объектам в форме на сайте.

Производство Клееного бруса
Производство Клееного бруса
Производство Клееного бруса
  Хочу построить сам Доверяю строительство "Конда"
под усадку под ключ
Домокомплект проекта ✔ ✔ ✔
Сборка домокомплекта ❌ ✔ ✔
Фундамент ❌ ✔ ✔
Отмостка и отделка фундамента ❌ ❌ ✔
Кровля ❌ ✔ ✔
Водосточная система ❌ ❌ ✔
Черновой пол и потолок ❌ ❌ ✔
Чистовой пол и потолок ❌ ❌ ✔
Устройство открытых террасс, крыльца ❌ ❌ ✔
Обработка наружных и внутренних стен сруба ❌ ❌ ✔
Наружние двери и окна ❌ ❌ ✔
Межкомнатные двери ❌ ❌ ✔
Электропроводка ✔
Отопление, Водопровод, Канализация ❌ ❌ ✔
Устройство септика, скважины ❌ ❌ ✔
Установка оборудования, сантехники, отопительных и электроприборов ❌ ❌ ✔
Доставка строительных материалов ✔ ✔ ✔
Вывоз строительного мусора ❌ ✔ ✔
Гарантия 5 лет на сборку! ❌ ✔ ✔
Вы можете бесплатно внести любые изменения в планировку и комплектацию данного проекта. Обратитесь к менеджеру для подробной консультации.
Калькулятор