Проект дома из бревна «Фомино»

Проект дома из бревна «Фомино»
От - 4 520 000 руб.
*комплектация «Под усадку»
Площадь
113 м2
Габариты
8x8 м
Санузлов
1   
Комнат
3   
Особенности:
с балконом
Материал:
оцилиндрованное бревно, 22 см
Фундамент:
забивные ж/б сваи
Кровля:
Металлочерепица

Проект дома из оцилиндрованного бревна диаметром 22 см - это классический вариант дома с мансардой, подходящий для постоянного проживания.

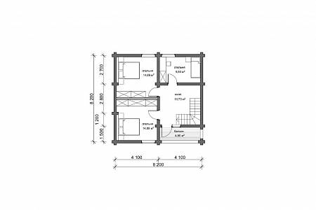
В доме имеется тамбур, отдельная комната на первом этаже, санузел, просторная гостиная совмещена с кухней. Здесь предполагается размещение кухонного гарнитура, обеденного стола и дивана с телевизором. В мансарде разместились 3 небольшие комнаты, предназначенные для отдыха, также имеется отдельный санузел. С общего холла имеется доступ на небольшой балкон.

В таком доме с комфортом разместиться семья с двумя или тремя детьми. Габаритные размеры дома выбраны исходя из длины бревна 6 м, при таких размерах раскрой бревен получается почти без отходов, что дает оптимальное использование материалов, следовательно экономию.

План 1-го этажа

План 2-го этажа

Хотите убедиться в качестве?
Приходите в гости!

Запишись на бесплатную экскурсию к нам на производство и по построенным объектам в форме на сайте.

Производство Клееного бруса
Производство Клееного бруса
Производство Клееного бруса
  Хочу построить сам Доверяю строительство "Конда"
под усадку под ключ
Домокомплект проекта ✔ ✔ ✔
Сборка домокомплекта ❌ ✔ ✔
Фундамент ❌ ✔ ✔
Отмостка и отделка фундамента ❌ ❌ ✔
Кровля ❌ ✔ ✔
Водосточная система ❌ ❌ ✔
Черновой пол и потолок ❌ ❌ ✔
Чистовой пол и потолок ❌ ❌ ✔
Устройство открытых террасс, крыльца ❌ ❌ ✔
Обработка наружных и внутренних стен сруба ❌ ❌ ✔
Наружние двери и окна ❌ ❌ ✔
Межкомнатные двери ❌ ❌ ✔
Электропроводка ✔
Отопление, Водопровод, Канализация ❌ ❌ ✔
Устройство септика, скважины ❌ ❌ ✔
Установка оборудования, сантехники, отопительных и электроприборов ❌ ❌ ✔
Доставка строительных материалов ✔ ✔ ✔
Вывоз строительного мусора ❌ ✔ ✔
Гарантия 5 лет на сборку! ❌ ✔ ✔
Вы можете бесплатно внести любые изменения в планировку и комплектацию данного проекта. Обратитесь к менеджеру для подробной консультации.
Калькулятор