Проект дома из бревна «Гилёво»

Проект дома из бревна «Гилёво»
От - 3 240 000 руб.
*комплектация «Под усадку»
Площадь
81 м2
Габариты
7x8 м
Санузлов
1   
Комнат
1   
Особенности:
с балконом
Материал:
оцилиндрованное бревно, 22 см
Фундамент:
забивные ж/б сваи
Кровля:
Металлочерепица

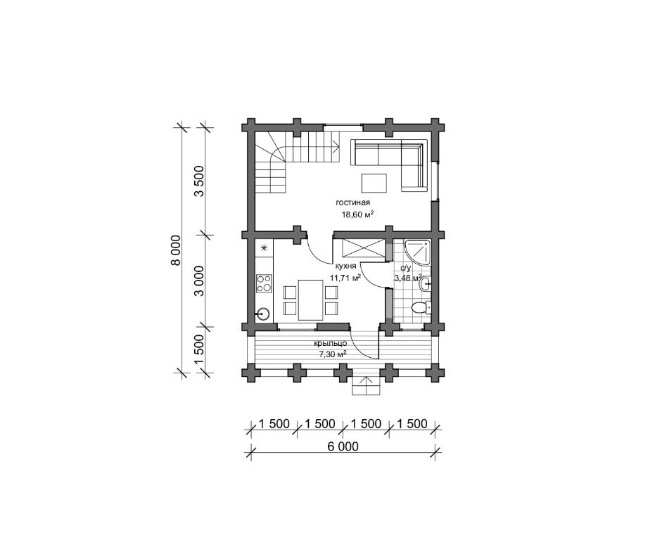
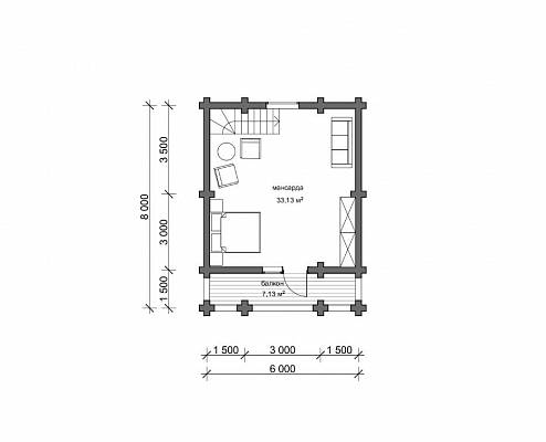
Дом с мансардой в русском стиле из оцилиндрованного бревна. Дом подойдет для сезонного или постоянного проживания для небольшой семьи.

Пространство дома представлено в свободной планировке. Необходимые помещения организовываются с помощью каркасных перегородок, отделанных блок-хаусом или имитацией бруса. Общей площади достаточно, чтобы организовать прихожую, санузел, пространство кухни-гостиной. На втором этаже при желании можно сделать две небольшие комнаты или оставить одно общее пространство.

Фасад дома украшают терраса и балкон с деревянными элементами – перерубами и столбами. Это выглядит очень массивно, придает дому внушительный и эстетичный вид.

План 1-го этажа

План 2-го этажа

Хотите убедиться в качестве?
Приходите в гости!

Запишись на бесплатную экскурсию к нам на производство и по построенным объектам в форме на сайте.

Производство Клееного бруса
Производство Клееного бруса
Производство Клееного бруса
  Хочу построить сам Доверяю строительство "Конда"
под усадку под ключ
Домокомплект проекта ✔ ✔ ✔
Сборка домокомплекта ❌ ✔ ✔
Фундамент ❌ ✔ ✔
Отмостка и отделка фундамента ❌ ❌ ✔
Кровля ❌ ✔ ✔
Водосточная система ❌ ❌ ✔
Черновой пол и потолок ❌ ❌ ✔
Чистовой пол и потолок ❌ ❌ ✔
Устройство открытых террасс, крыльца ❌ ❌ ✔
Обработка наружных и внутренних стен сруба ❌ ❌ ✔
Наружние двери и окна ❌ ❌ ✔
Межкомнатные двери ❌ ❌ ✔
Электропроводка ✔
Отопление, Водопровод, Канализация ❌ ❌ ✔
Устройство септика, скважины ❌ ❌ ✔
Установка оборудования, сантехники, отопительных и электроприборов ❌ ❌ ✔
Доставка строительных материалов ✔ ✔ ✔
Вывоз строительного мусора ❌ ✔ ✔
Гарантия 5 лет на сборку! ❌ ✔ ✔
Вы можете бесплатно внести любые изменения в планировку и комплектацию данного проекта. Обратитесь к менеджеру для подробной консультации.
Калькулятор