Проект дома из бревна «Мариинск‎»

Проект дома из бревна «Мариинск‎»
От - 1 884 800 руб.
*Ориентировочный размер первоначального взноса в объеме 20% от общей стоимости строительства в предчистовой комплектации при рассрочке на год.

Подробности в описании ниже.
Площадь
112 м2
Габариты
9x9 м
Санузлов
2   
Комнат
3   
Материал:
оцилиндрованное бревно, 22 см
Фундамент:
забивные ж/б сваи
Кровля:
Металлочерепица

Проект дома с общей площадью 112 м.кв. выполнен из оцилиндрованного бревна 22 диаметра, что позволяет проживать в доме круглый год.

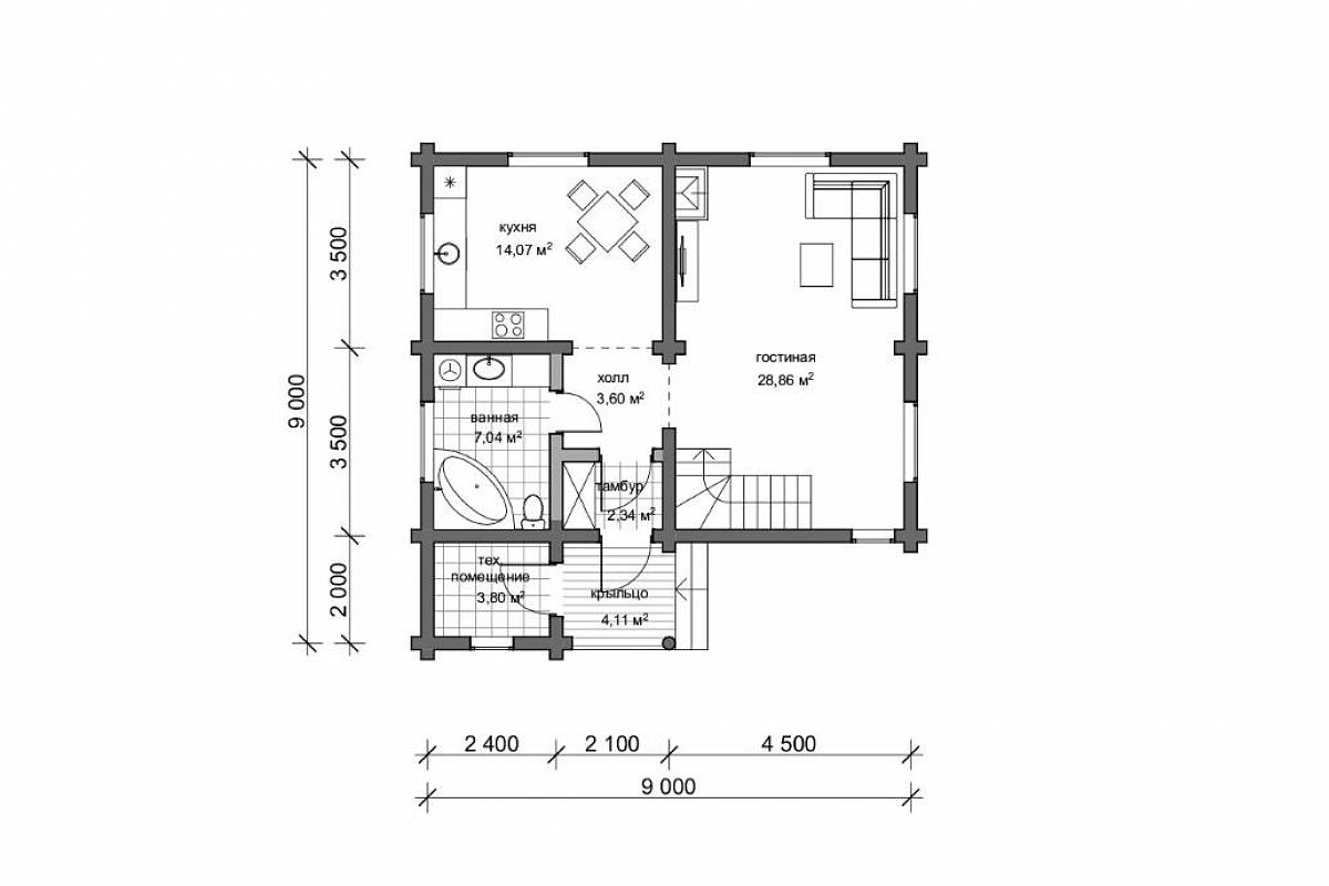
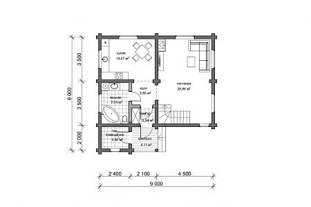
При габаритах 9х9 в доме максимально запланированы необходимые для комфортного проживания помещения. Все «мокрые» помещения совмещены в один узел, что дает экономию на монтаже труб водоснабжения и канализации. В доме организована котельная с отдельным выходом. На первом этаже размещены санузел, кухня, гостиная. В гостиной предусмотрено размещение камина, для дополнительного обогрева, также лестница с забежными ступенями на второй этаж.

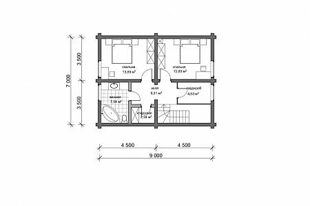
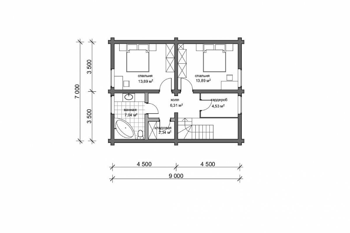
Второй этаж мансардный с утепленной кровлей. Здесь размещаются две спальни, помещение гардероба и санузла.



В описании приведен первоначальный взнос в размере 20% от общей стоимости строительства данного проекта в предчистовой комплектации, при условии рассрочки на год. Оставшиеся платежи – это ежемесячные взносы в размере 628.266 рублей, которые необходимо произвести в течение года. Полные условия рассрочки можно узнать у менеджеров компании по указанным на сайте телефонам. Обращаем ваше внимание на то, что итоговая цена и платежи по рассрочке зависят от комплектации и являются ориентировочными. Предложение не является публичной офертой.

План 1-го этажа

План 2-го этажа

Хотите убедиться в качестве?
Приходите в гости!

Запишись на бесплатную экскурсию к нам на производство и по построенным объектам в форме на сайте.

Производство Клееного бруса
Производство Клееного бруса
Производство Клееного бруса
  Хочу построить сам Доверяю строительство "Конда"
под усадку под ключ
Домокомплект проекта ✔ ✔ ✔
Сборка домокомплекта ❌ ✔ ✔
Фундамент ❌ ✔ ✔
Отмостка и отделка фундамента ❌ ❌ ✔
Кровля ❌ ✔ ✔
Водосточная система ❌ ❌ ✔
Черновой пол и потолок ❌ ❌ ✔
Чистовой пол и потолок ❌ ❌ ✔
Устройство открытых террасс, крыльца ❌ ❌ ✔
Обработка наружных и внутренних стен сруба ❌ ❌ ✔
Наружние двери и окна ❌ ❌ ✔
Межкомнатные двери ❌ ❌ ✔
Электропроводка ✔
Отопление, Водопровод, Канализация ❌ ❌ ✔
Устройство септика, скважины ❌ ❌ ✔
Установка оборудования, сантехники, отопительных и электроприборов ❌ ❌ ✔
Доставка строительных материалов ✔ ✔ ✔
Вывоз строительного мусора ❌ ✔ ✔
Гарантия 5 лет на сборку! ❌ ✔ ✔
Вы можете бесплатно внести любые изменения в планировку и комплектацию данного проекта. Обратитесь к менеджеру для подробной консультации.
Калькулятор