Проект дома из бревна «Муллаши»

Проект дома из бревна «Муллаши»
От - 4 160 000 руб.
*комплектация «Под усадку»
Площадь
104 м2
Габариты
6x9 м
Санузлов
1   
Комнат
3   
Особенности:
с эркером
Материал:
оцилиндрованное бревно, 22 см
Фундамент:
забивные ж/б сваи
Кровля:
Металлочерепица

Проект дома из бревна выполнен в русском стиле, в зависимости от выбранного диаметра бревна подойдет для сезонного или постоянного проживания. Хорошо впишется на участке от 8 соток.

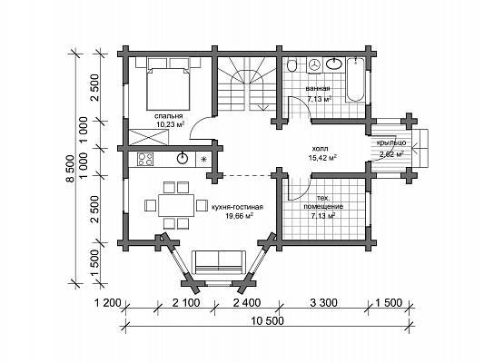
Пространство дома организовано классическим набором помещений. Вход в дом оформлен крытым крыльцом, далее мы попадаем в прихожую, есть достаточный по площади санузел для размещения ванны, унитаза, раковины, стиральной машинки. Также есть техническое помещение для установки водогрейного котла и другого инженерного оборудования дома. Кухня совмещена с гостиной, это пространство украшает эркер, срубленный из бревна.

Спальные комнаты размещены по одной на каждом этаже. Второй этаж выполнен в свободной планировке, по желанию его можно разбить на жилые комнаты с помощью каркасных перегородок или оставить общим пространством для времяпрепровождения всей семьи.

План 1-го этажа

План 2-го этажа

Хотите убедиться в качестве?
Приходите в гости!

Запишись на бесплатную экскурсию к нам на производство и по построенным объектам в форме на сайте.

Производство Клееного бруса
Производство Клееного бруса
Производство Клееного бруса
  Хочу построить сам Доверяю строительство "Конда"
под усадку под ключ
Домокомплект проекта ✔ ✔ ✔
Сборка домокомплекта ❌ ✔ ✔
Фундамент ❌ ✔ ✔
Отмостка и отделка фундамента ❌ ❌ ✔
Кровля ❌ ✔ ✔
Водосточная система ❌ ❌ ✔
Черновой пол и потолок ❌ ❌ ✔
Чистовой пол и потолок ❌ ❌ ✔
Устройство открытых террасс, крыльца ❌ ❌ ✔
Обработка наружных и внутренних стен сруба ❌ ❌ ✔
Наружние двери и окна ❌ ❌ ✔
Межкомнатные двери ❌ ❌ ✔
Электропроводка ✔
Отопление, Водопровод, Канализация ❌ ❌ ✔
Устройство септика, скважины ❌ ❌ ✔
Установка оборудования, сантехники, отопительных и электроприборов ❌ ❌ ✔
Доставка строительных материалов ✔ ✔ ✔
Вывоз строительного мусора ❌ ✔ ✔
Гарантия 5 лет на сборку! ❌ ✔ ✔
Вы можете бесплатно внести любые изменения в планировку и комплектацию данного проекта. Обратитесь к менеджеру для подробной консультации.
Калькулятор