Проект дома из бревна «Омутинское»

Проект дома из бревна «Омутинское»
От - 5 040 000 руб.
*комплектация «Под усадку»
Площадь
126 м2
Габариты
8x9 м
Санузлов
1   
Комнат
2   
Особенности:
с балконом
Материал:
оцилиндрованное бревно, 22 см
Фундамент:
забивные ж/б сваи
Кровля:
Металлочерепица

Проект дачного дома из оцилиндрованного бревна, компактный по габаритам 8,0х9,0 м впишется на участок от 6 соток.

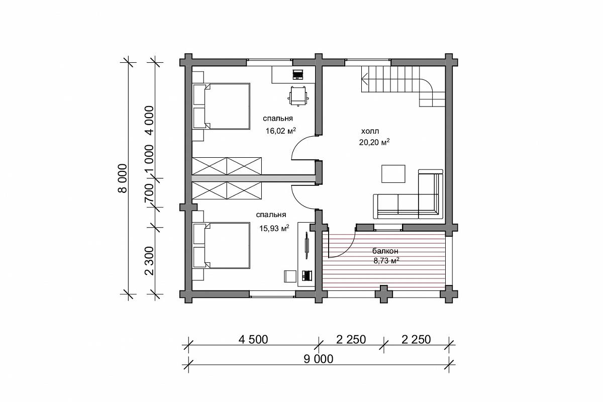
Дом выполнен в свободной планировке, вход в дом организован с небольшого крыльца, украшенного перерубами из бревна. Есть санузел, в котором также можно установить твердотопливный котел. Остальное общее пространство визуально можно поделить на кухню и гостиную. На втором этаже вся площадь используется под жилые пространства. Здесь организованы две спальни, а холл можно использовать как пространство для отдыха всей семьи или для гостей, также из холла можно выйти на балкон, полюбоваться своим садом или дальней красивой видовой точкой.

План 1-го этажа

План 2-го этажа

Хотите убедиться в качестве?
Приходите в гости!

Запишись на бесплатную экскурсию к нам на производство и по построенным объектам в форме на сайте.

Производство Клееного бруса
Производство Клееного бруса
Производство Клееного бруса
  Хочу построить сам Доверяю строительство "Конда"
под усадку под ключ
Домокомплект проекта ✔ ✔ ✔
Сборка домокомплекта ❌ ✔ ✔
Фундамент ❌ ✔ ✔
Отмостка и отделка фундамента ❌ ❌ ✔
Кровля ❌ ✔ ✔
Водосточная система ❌ ❌ ✔
Черновой пол и потолок ❌ ❌ ✔
Чистовой пол и потолок ❌ ❌ ✔
Устройство открытых террасс, крыльца ❌ ❌ ✔
Обработка наружных и внутренних стен сруба ❌ ❌ ✔
Наружние двери и окна ❌ ❌ ✔
Межкомнатные двери ❌ ❌ ✔
Электропроводка ✔
Отопление, Водопровод, Канализация ❌ ❌ ✔
Устройство септика, скважины ❌ ❌ ✔
Установка оборудования, сантехники, отопительных и электроприборов ❌ ❌ ✔
Доставка строительных материалов ✔ ✔ ✔
Вывоз строительного мусора ❌ ✔ ✔
Гарантия 5 лет на сборку! ❌ ✔ ✔
Вы можете бесплатно внести любые изменения в планировку и комплектацию данного проекта. Обратитесь к менеджеру для подробной консультации.
Калькулятор