Проект дома из бревна «Тура»

Проект дома из бревна «Тура»
От - 9 160 000 руб.
*комплектация «Под усадку»
Площадь
229 м2
Габариты
10x15 м
Санузлов
2   
Комнат
4   
Особенности:
с балконом / с террасой
Материал:
оцилиндрованное бревно, 22 см
Фундамент:
забивные ж/б сваи
Кровля:
Металлочерепица

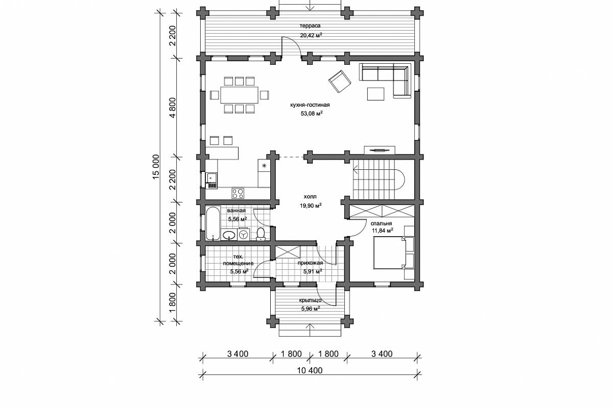
Просторный двухэтажный дом с террасой, четырьмя спальнями, балконом и обширной гостиной со вторым светом. Дом имеет общую площадь 229 м.кв. и подойдет для постоянного проживания. Проект дома имеет классический внешний вид – двускатная кровля, по южному фасаду расположились терраса с балконом, консольные выступы из бревна держат широкие свесы крыши.

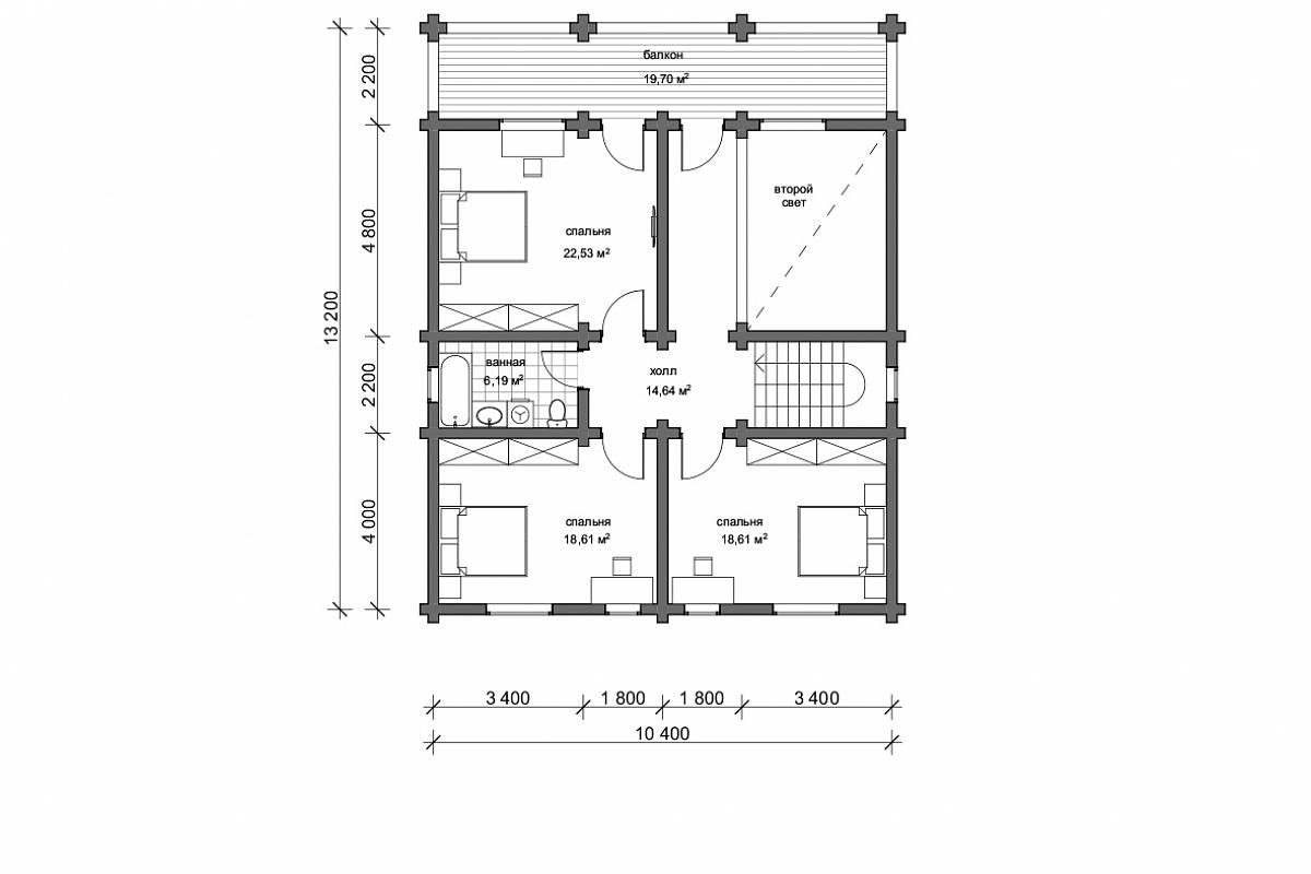
Для комфортного проживания предусмотрены все необходимые помещения. Для защиты от бокового ветра и осадков при входе в дом запроектировано крыльцо. Далее через тепловой тамбур попадаем в холл, из которого можно подняться на второй этаж, зайти в санузел, жилую комнату и в кухню-гостиную. Здесь достаточно места для размещения кухонного гарнитура, обеденной зоны и диванной группы. Из кухни есть выход на террасу, которая в летний период станет дополнительным местом для отдыха всей семье. На втором этаже разместились три спальни, санузел, балкон.

План 1-го этажа

План 2-го этажа

Хотите убедиться в качестве?
Приходите в гости!

Запишись на бесплатную экскурсию к нам на производство и по построенным объектам в форме на сайте.

Производство Клееного бруса
Производство Клееного бруса
Производство Клееного бруса
  Хочу построить сам Доверяю строительство "Конда"
под усадку под ключ
Домокомплект проекта ✔ ✔ ✔
Сборка домокомплекта ❌ ✔ ✔
Фундамент ❌ ✔ ✔
Отмостка и отделка фундамента ❌ ❌ ✔
Кровля ❌ ✔ ✔
Водосточная система ❌ ❌ ✔
Черновой пол и потолок ❌ ❌ ✔
Чистовой пол и потолок ❌ ❌ ✔
Устройство открытых террасс, крыльца ❌ ❌ ✔
Обработка наружных и внутренних стен сруба ❌ ❌ ✔
Наружние двери и окна ❌ ❌ ✔
Межкомнатные двери ❌ ❌ ✔
Электропроводка ✔
Отопление, Водопровод, Канализация ❌ ❌ ✔
Устройство септика, скважины ❌ ❌ ✔
Установка оборудования, сантехники, отопительных и электроприборов ❌ ❌ ✔
Доставка строительных материалов ✔ ✔ ✔
Вывоз строительного мусора ❌ ✔ ✔
Гарантия 5 лет на сборку! ❌ ✔ ✔
Вы можете бесплатно внести любые изменения в планировку и комплектацию данного проекта. Обратитесь к менеджеру для подробной консультации.
Калькулятор