Проект дома из бревна «Ярково»

Проект дома из бревна «Ярково»
От - 3 380 000 руб.
*комплектация «Под усадку»
Площадь
65 м2
Габариты
6x7 м
Санузлов
1   
Комнат
3   
Особенности:
с верандой
Материал:
оцилиндрованное бревно, 22 см
Фундамент:
забивные ж/б сваи
Кровля:
Металлочерепица

Проект дома с габаритами 6,6х7,6 подойдет для небольших участков от 4 соток, для постоянного или сезонного проживания. Проект выполнен из оцилиндрованного бревна 24 диаметра, стены хорошо сохранят тепло, порадуют приятной текстурой и рисунком дерева.

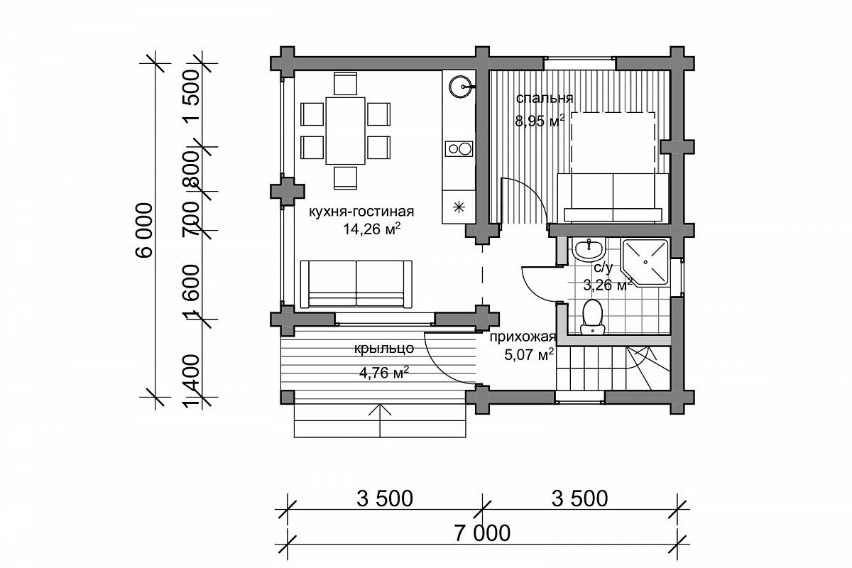
В доме запланировано небольшое крылечко, на котором можно поставить лавочку, кресло со столиком. В прихожей удачно поместится лестница с забежными ступенями, которая не займет много полезной площади. На первом этаже есть отдельная спальня 9 м.кв. Большую комнату в 14 квадратов можно оборудовать как кухню-гостиную, при этом в ней поместятся кухонный гарнитур, диван, обеденный стол. На втором этаже разместились две спальни.

План 1-го этажа

План 2-го этажа

Хотите убедиться в качестве?
Приходите в гости!

Запишись на бесплатную экскурсию к нам на производство и по построенным объектам в форме на сайте.

Производство Клееного бруса
Производство Клееного бруса
Производство Клееного бруса
  Хочу построить сам Доверяю строительство "Конда"
под усадку под ключ
Домокомплект проекта ✔ ✔ ✔
Сборка домокомплекта ❌ ✔ ✔
Фундамент ❌ ✔ ✔
Отмостка и отделка фундамента ❌ ❌ ✔
Кровля ❌ ✔ ✔
Водосточная система ❌ ❌ ✔
Черновой пол и потолок ❌ ❌ ✔
Чистовой пол и потолок ❌ ❌ ✔
Устройство открытых террасс, крыльца ❌ ❌ ✔
Обработка наружных и внутренних стен сруба ❌ ❌ ✔
Наружние двери и окна ❌ ❌ ✔
Межкомнатные двери ❌ ❌ ✔
Электропроводка ✔
Отопление, Водопровод, Канализация ❌ ❌ ✔
Устройство септика, скважины ❌ ❌ ✔
Установка оборудования, сантехники, отопительных и электроприборов ❌ ❌ ✔
Доставка строительных материалов ✔ ✔ ✔
Вывоз строительного мусора ❌ ✔ ✔
Гарантия 5 лет на сборку! ❌ ✔ ✔
Вы можете бесплатно внести любые изменения в планировку и комплектацию данного проекта. Обратитесь к менеджеру для подробной консультации.
Калькулятор