Проект дома из бруса «Илим»

Проект дома из бруса «Илим»
От - 3 276 000 руб.
*комплектация «Под усадку»
Площадь
52 м2
Габариты
6x6 м
Санузлов
1   
Комнат
2   
Материал:
клееный брус, 160x185
Фундамент:
забивные ж/б сваи
Кровля:
Металлочерепица
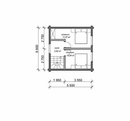
Проект компактного деревянного дома из клееного бруса. Предназначен для сезонного проживания, подойдет семье из 2-3 человек, также может использоваться в качестве дачного или гостевого дома. Вход в дом украшен крыльцом 1,2*1,6 м., которое защитит от бокового ветра и осадков, далее расположен тепловой тамбур, который не пропустит холод с улицы в основное жилое пространство. На первом этаже расположена объединенная кухня-гостиная и ванная комната. Второй этаж занимают две спальни.

План 1-го этажа

План 2-го этажа

Хотите убедиться в качестве?
Приходите в гости!

Запишись на бесплатную экскурсию к нам на производство и по построенным объектам в форме на сайте.

Производство Клееного бруса
Производство Клееного бруса
Производство Клееного бруса
  Хочу построить сам Доверяю строительство "Конда"
под усадку под ключ
Домокомплект проекта ✔ ✔ ✔
Сборка домокомплекта ❌ ✔ ✔
Фундамент ❌ ✔ ✔
Отмостка и отделка фундамента ❌ ❌ ✔
Кровля ❌ ✔ ✔
Водосточная система ❌ ❌ ✔
Черновой пол и потолок ❌ ❌ ✔
Чистовой пол и потолок ❌ ❌ ✔
Устройство открытых террасс, крыльца ❌ ❌ ✔
Обработка наружных и внутренних стен сруба ❌ ❌ ✔
Наружние двери и окна ❌ ❌ ✔
Межкомнатные двери ❌ ❌ ✔
Электропроводка ✔
Отопление, Водопровод, Канализация ❌ ❌ ✔
Устройство септика, скважины ❌ ❌ ✔
Установка оборудования, сантехники, отопительных и электроприборов ❌ ❌ ✔
Доставка строительных материалов ✔ ✔ ✔
Вывоз строительного мусора ❌ ✔ ✔
Гарантия 5 лет на сборку! ❌ ✔ ✔
Вы можете бесплатно внести любые изменения в планировку и комплектацию данного проекта. Обратитесь к менеджеру для подробной консультации.
Калькулятор