Проект дома из бруса "Талица"

Проект дома из бруса "Талица"
От - 4 861 000 руб.
*комплектация «Под усадку»
Площадь
103 м2
Габариты
7x8 м
Санузлов
1   
Комнат
3   
Особенности:
с террасой
Материал:
клееный брус, 160x185
Фундамент:
забивные ж/б сваи
Кровля:
Металлочерепица


Проект дома из бруса "Талица" представляет собой идеальное решение для тех, кто ценит комфорт и уют загородной жизни. Это одноэтажное здание площадью 100 квадратных метров имеет продуманную планировку. Просторная гостиная с большими окнами, которые наполняют интерьер естественным светом, идеально сочетает функциональность и эстетику. Отдельная кухня с выходом на террасу позволяет наслаждаться семейными трапезами на свежем воздухе. Две уютные спальни обеспечивают уединение для всех членов семьи. Использование экологически чистого бруса гарантирует долговечность и тепло в Вашем доме. Проект "Талица" — это красивый и комфортный дом для Вашей семьи!

План 1-го этажа

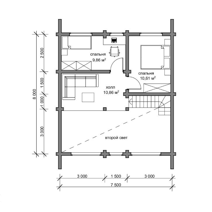
План 2-го этажа

Хотите убедиться в качестве?
Приходите в гости!

Запишись на бесплатную экскурсию к нам на производство и по построенным объектам в форме на сайте.

Производство Клееного бруса
Производство Клееного бруса
Производство Клееного бруса
  Хочу построить сам Доверяю строительство "Конда"
под усадку под ключ
Домокомплект проекта ✔ ✔ ✔
Сборка домокомплекта ❌ ✔ ✔
Фундамент ❌ ✔ ✔
Отмостка и отделка фундамента ❌ ❌ ✔
Кровля ❌ ✔ ✔
Водосточная система ❌ ❌ ✔
Черновой пол и потолок ❌ ❌ ✔
Чистовой пол и потолок ❌ ❌ ✔
Устройство открытых террасс, крыльца ❌ ❌ ✔
Обработка наружных и внутренних стен сруба ❌ ❌ ✔
Наружние двери и окна ❌ ❌ ✔
Межкомнатные двери ❌ ❌ ✔
Электропроводка ✔
Отопление, Водопровод, Канализация ❌ ❌ ✔
Устройство септика, скважины ❌ ❌ ✔
Установка оборудования, сантехники, отопительных и электроприборов ❌ ❌ ✔
Доставка строительных материалов ✔ ✔ ✔
Вывоз строительного мусора ❌ ✔ ✔
Гарантия 5 лет на сборку! ❌ ✔ ✔
Вы можете бесплатно внести любые изменения в планировку и комплектацию данного проекта. Обратитесь к менеджеру для подробной консультации.
Калькулятор