Проект дома из бруса «Тугулым»

Проект дома из бруса «Тугулым»
От - 11 938 000 руб.
*комплектация «Под усадку»
Площадь
254 м2
Габариты
11x13 м
Санузлов
2   
Комнат
4   
Особенности:
с балконом / с террасой
Материал:
клееный брус, 160x185
Фундамент:
забивные ж/б сваи
Кровля:
Металлочерепица

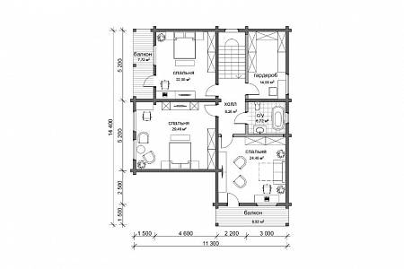
Проект для постоянного проживания семьи из 4-х человек, с разнополыми детьми. Дом получился достаточной площади, чтобы разместить все необходимые помещения. Дом начинается с крыльца, есть тамбур, зона прихожей, котельная с отдельным выходом на улицу по нормам, просторный санузел и дополнительное техническое помещение, которое можно использовать как постирочную, кладовую или гардероб.

Также в этом доме кухня и гостиная отделены, те не создают единого пространства. Яркие запахи с кухни (рыба, чеснок, молоко убежало) не попадают в гостевую зону, и гости не видят немытую посуду и повседневный бардак. При этом есть широкая дверь, при желании можно эти пространства визуально объединить.

Всего в доме 4 спальни, 3 из них на 2 этаже. Одна спальня родительская, 2 – для детей, и на первом этаже спальня для гостей, бабушек/дедушек. Так как дом для постоянного проживания, здесь запроектирована удобная комфортная лестница, которой удобно пользоваться даже ребенку. Также на втором этаже есть ванная, и гардероб, что удобно, все вещи, особенно сезонные могут хранится здесь, а в комнатах освобождаются кв. метры.

Украшением дома является терраса и балкон, они тоже предусмотрены на южной стороне, поэтому в солнечный день удобно принимать солнечные ванны, в пасмурную погоду можно скрываться от дождя, при этом оставаясь на улице.

План 1-го этажа

План 2-го этажа

Хотите убедиться в качестве?
Приходите в гости!

Запишись на бесплатную экскурсию к нам на производство и по построенным объектам в форме на сайте.

Производство Клееного бруса
Производство Клееного бруса
Производство Клееного бруса
  Хочу построить сам Доверяю строительство "Конда"
под усадку под ключ
Домокомплект проекта ✔ ✔ ✔
Сборка домокомплекта ❌ ✔ ✔
Фундамент ❌ ✔ ✔
Отмостка и отделка фундамента ❌ ❌ ✔
Кровля ❌ ✔ ✔
Водосточная система ❌ ❌ ✔
Черновой пол и потолок ❌ ❌ ✔
Чистовой пол и потолок ❌ ❌ ✔
Устройство открытых террасс, крыльца ❌ ❌ ✔
Обработка наружных и внутренних стен сруба ❌ ❌ ✔
Наружние двери и окна ❌ ❌ ✔
Межкомнатные двери ❌ ❌ ✔
Электропроводка ✔
Отопление, Водопровод, Канализация ❌ ❌ ✔
Устройство септика, скважины ❌ ❌ ✔
Установка оборудования, сантехники, отопительных и электроприборов ❌ ❌ ✔
Доставка строительных материалов ✔ ✔ ✔
Вывоз строительного мусора ❌ ✔ ✔
Гарантия 5 лет на сборку! ❌ ✔ ✔
Вы можете бесплатно внести любые изменения в планировку и комплектацию данного проекта. Обратитесь к менеджеру для подробной консультации.
Калькулятор