Проект дома из бруса «Залесье»

Проект дома из бруса «Залесье»
От - 6 251 000 руб.
*комплектация «Под усадку»
Площадь
133 м2
Габариты
7x11 м
Санузлов
2   
Комнат
4   
Особенности:
с террасой
Материал:
клееный брус, 160x185
Фундамент:
забивные ж/б сваи
Кровля:
Металлочерепица

Проект жилого дома выполнен в стиле Барнхаус. Этот стиль диктует прямоугольную форму плана, минимализм и сдержанность в отделке, использование натуральных материалов, панорамное остекление фасада. Проект выполнен из клееного бруса, имеет габариты 7,2х 10,9 м и общую площадь 133 м.кв. Подойдет для постоянного проживания семьи из четырех-пяти человек, также может использоваться как дом выходного дня.

Вход в дом организован через утопленное в фасаде крыльцо и тепловой тамбур, здесь же размещается отдельный вход в техническое помещение. В прихожей зоне располагается вместительный гардероб, устроена ванная комната, запроектирована комфортная для подъема и спуска лестница. На первом этаже разместилась спальня, остальное пространство отдано под объединенную кухню-гостиную, здесь организован второй свет, возможно устройство камина, это пространство максимально освещено через панорамное остекление, есть выход на летнюю открытую террасу.

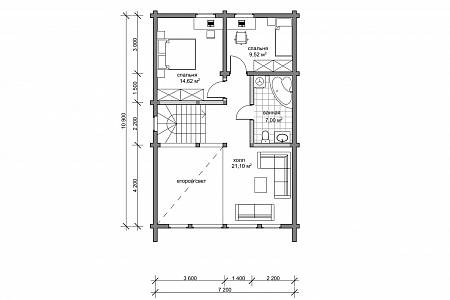
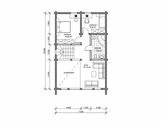
На втором этаже устроены две спальни и вторая ванная комната, пространство над кухней образует вторую зону гостиной – это место можно использовать в зависимости от увлечений владельцев дома – обустроить здесь кинотеатр, игровую комнату для детей, библиотеку, спортзал или дополнительную жилую комнату.

Фундамент ЖБ сваи - 3 метра. Кровля металлочерепица. КЛБ - 160/185 мм. ОЦБ - 220 мм ПРФ - 190/140 мм

План 1-го этажа

План 2-го этажа

Хотите убедиться в качестве?
Приходите в гости!

Запишись на бесплатную экскурсию к нам на производство и по построенным объектам в форме на сайте.

Производство Клееного бруса
Производство Клееного бруса
Производство Клееного бруса
  Хочу построить сам Доверяю строительство "Конда"
под усадку под ключ
Домокомплект проекта ✔ ✔ ✔
Сборка домокомплекта ❌ ✔ ✔
Фундамент ❌ ✔ ✔
Отмостка и отделка фундамента ❌ ❌ ✔
Кровля ❌ ✔ ✔
Водосточная система ❌ ❌ ✔
Черновой пол и потолок ❌ ❌ ✔
Чистовой пол и потолок ❌ ❌ ✔
Устройство открытых террасс, крыльца ❌ ❌ ✔
Обработка наружных и внутренних стен сруба ❌ ❌ ✔
Наружние двери и окна ❌ ❌ ✔
Межкомнатные двери ❌ ❌ ✔
Электропроводка ✔
Отопление, Водопровод, Канализация ❌ ❌ ✔
Устройство септика, скважины ❌ ❌ ✔
Установка оборудования, сантехники, отопительных и электроприборов ❌ ❌ ✔
Доставка строительных материалов ✔ ✔ ✔
Вывоз строительного мусора ❌ ✔ ✔
Гарантия 5 лет на сборку! ❌ ✔ ✔
Вы можете бесплатно внести любые изменения в планировку и комплектацию данного проекта. Обратитесь к менеджеру для подробной консультации.
Калькулятор