Проект дома из бревна «Кленовское»

Проект дома из бревна «Кленовское»
От - 9 280 000 руб.
*комплектация «Под усадку»
Площадь
232 м2
Габариты
11x12 м
Санузлов
2   
Комнат
5   
Особенности:
с балконом / с террасой
Материал:
оцилиндрованное бревно, 22 см
Фундамент:
забивные ж/б сваи
Кровля:
Металлочерепица

Проект деревянного дома, выполнен из оцилиндрованного бревна, имеет непривычную архитектуру для деревянного дома, так как спроектирован с двумя полноценными по высоте этажами.

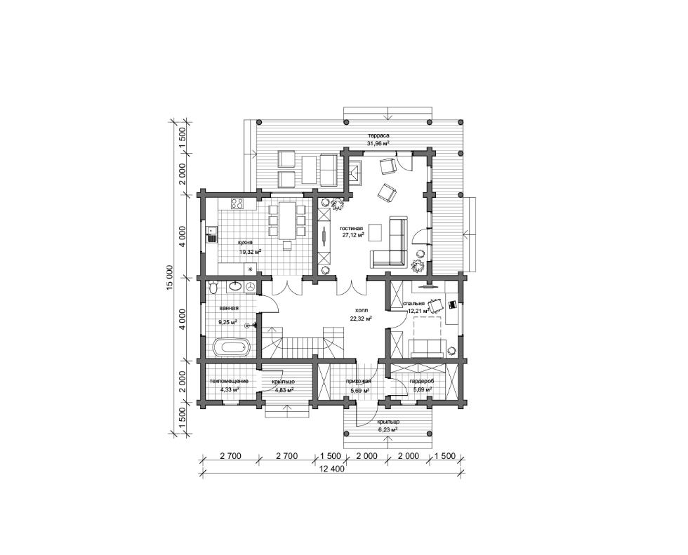
Габариты дома 12,5х 11,5, на данной площади размещаются: прихожая, гардероб, санузел, котельная, холл с лестницей, отдельная комната, которую можно использовать как гостевую, кабинет, спортзал, мастерскую и т.д. Кухня, столовая и гостиная выделены в отдельную зону, и плавно переходят одно помещение в другое, при желании проходы можно сделать сквозными или поставить широкие двери. Все эти помещения имеют панорамные окна с видом на сад, есть выход на террасу.

Второй этаж – жилой, здесь размещены три спальни, просторный санузел с большими окнами для естественного освещения. Этот прием часто обыгрывается, ставится дизайнерская ванная около окна. Также на втором этаже организована гардеробная комната и есть выход на балкон.

План 1-го этажа

План 2-го этажа

Хотите убедиться в качестве?
Приходите в гости!

Запишись на бесплатную экскурсию к нам на производство и по построенным объектам в форме на сайте.

Производство Клееного бруса
Производство Клееного бруса
Производство Клееного бруса
  Хочу построить сам Доверяю строительство "Конда"
под усадку под ключ
Домокомплект проекта ✔ ✔ ✔
Сборка домокомплекта ❌ ✔ ✔
Фундамент ❌ ✔ ✔
Отмостка и отделка фундамента ❌ ❌ ✔
Кровля ❌ ✔ ✔
Водосточная система ❌ ❌ ✔
Черновой пол и потолок ❌ ❌ ✔
Чистовой пол и потолок ❌ ❌ ✔
Устройство открытых террасс, крыльца ❌ ❌ ✔
Обработка наружных и внутренних стен сруба ❌ ❌ ✔
Наружние двери и окна ❌ ❌ ✔
Межкомнатные двери ❌ ❌ ✔
Электропроводка ✔
Отопление, Водопровод, Канализация ❌ ❌ ✔
Устройство септика, скважины ❌ ❌ ✔
Установка оборудования, сантехники, отопительных и электроприборов ❌ ❌ ✔
Доставка строительных материалов ✔ ✔ ✔
Вывоз строительного мусора ❌ ✔ ✔
Гарантия 5 лет на сборку! ❌ ✔ ✔
Вы можете бесплатно внести любые изменения в планировку и комплектацию данного проекта. Обратитесь к менеджеру для подробной консультации.
Калькулятор